- HOME
- マンションギャラリー一覧
- コルマール
コルマール
【 アパート 】初期費用のクレジットカード決済可能。追い炊き等の設備が充実
| 最寄駅 | 所在地 | 間取り | 面積 | 築年月 |
|---|---|---|---|---|
有楽町線・千川駅 徒歩 10分 | 東京都豊島区千早3-19-9 | 1 LDK | 43㎡ | 2018年07月 |
この物件の募集は終了しています
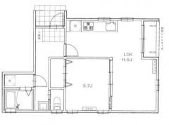
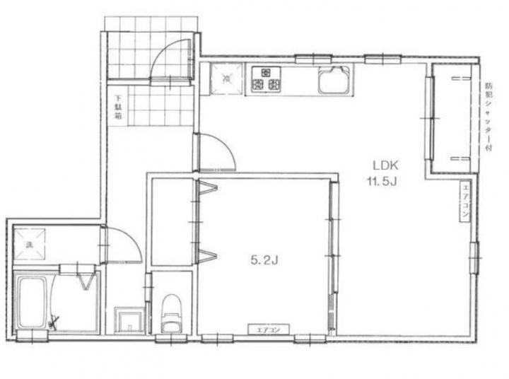
南向き、角部屋、複数面採光の1LDKはグリル付きの3口システムキッチンや追い炊き、浴室乾燥機、三面鏡付洗髪洗面化粧台、温水洗浄便座、エアコン2基等の室内設備に優れ、床下収納があり収納も豊富です。
物件写真・間取り
物件概要
| 物件名 | コルマール |
|---|
| 交通機関 | 有楽町線・千川駅 徒歩 10分 西武池袋線・東長崎駅 徒歩 7分 大江戸線・落合南長崎駅 徒歩 16分 |
|---|
| 間取り詳細 | LDK:11.5畳 洋室:5.2畳 |
|---|
| 建物構造 | 木造 |
|---|
| 所在階 / 階数 | 1階/2階建 |
|---|
| 主要採光面 | 南側 |
|---|
| 契約期間 | 2年 |
|---|
| 引渡 | 相談 |
|---|
| 現況 | 居住中 |
|---|
| 設備・条件 | 駐輪場/南向き/角住戸/2面採光/システムキッチン/ガスレンジ付/3口以上コンロ/グリル付/バストイレ別/オートバス/追焚機能浴室/浴室乾燥機/温水洗浄便座/洗面所独立/三面鏡付洗面化粧台/シャワー付洗面台/24時間換気システム/バルコニー/南面バルコニー/フローリング/全居室フローリング/シャッター/室内洗濯置/クロゼット/シューズボックス/床下収納/光ファイバー/TVインターホン/保証人不要/初期費用カード決済可/エアコン/エアコン2台/通風良好 |
|---|
| 備考 | 二人入居の場合:賃料119,000円 |
|---|
| 取引態様 | 媒介 |
|---|
| 情報登録日 | 2023年07月30日 |
|---|
| 情報更新日 | 2023年07月30日 |
|---|




















