- HOME
- マンションギャラリー一覧
- メイクスデザイン学習院下
メイクスデザイン学習院下
【 マンション 】初期費用のクレジットカード決済可能。追い炊き等の設備が充実
| 最寄駅 | 所在地 | 間取り | 面積 | 築年月 |
|---|---|---|---|---|
副都心線・雑司が谷駅 徒歩 5分 | 東京都豊島区高田1-29-7 | 1 R | 30.77㎡ | 2019年10月 |
この物件の募集は終了しています
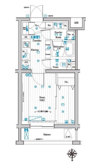
ベッドスペースを分けることが出来る間取り。追い炊きや浴室暖房乾燥機、独立洗面化粧台、温水洗浄便座、2口ガスのシステムキッチン等の室内設備や宅配ボックスや24時間利用可能なゴミ置場等の共用設備も充実。
物件写真・間取り
物件概要
| 物件名 | メイクスデザイン学習院下 |
|---|
| 交通機関 | 副都心線・雑司が谷駅 徒歩 5分 山手線・目白駅 徒歩 14分 都電荒川線・学習院下駅 徒歩 3分 |
|---|
| 間取り詳細 | 8.6畳 |
|---|
| 建物構造 | RC |
|---|
| 所在階 / 階数 | 1階/5階建 |
|---|
| 主要採光面 | 北側 |
|---|
| 契約期間 | 2年 |
|---|
| 引渡 | 相談 |
|---|
| 現況 | 居住中 |
|---|
| 設備・条件 | 分譲賃貸/エレベーター/24時間ゴミ出し可/宅配ボックス/敷地内ごみ置き場/駐輪場/バイク置場/オートロック/防犯カメラ/システムキッチン/ガスレンジ付/2口コンロ/都市ガス/バストイレ別/追焚機能浴室/浴室乾燥機/温水洗浄便座/洗面所独立/三面鏡付洗面化粧台/シャワー付洗面台/24時間換気システム/バルコニー/フローリング/室内洗濯置/クロゼット/シューズボックス/BS・CS/CATV/TVインターホン/保証人不要/エアコン |
|---|
| 備考 | 分譲賃貸マンション情報が豊富なリガール |
|---|
| 取引態様 | 媒介 |
|---|
| 情報登録日 | 2023年05月05日 |
|---|
| 情報更新日 | 2023年05月05日 |
|---|




















