- HOME
- マンションギャラリー一覧
- シェフルール西早稲田ラヴィーナ
シェフルール西早稲田ラヴィーナ
【 マンション 】食洗器付アイランドキッチンや床暖房等の設備に優れたペット可分譲マンション
| 最寄駅 | 所在地 | 間取り | 面積 | 築年月 |
|---|---|---|---|---|
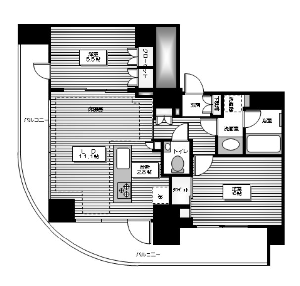
山手線・高田馬場駅 徒歩 8分 | 東京都新宿区西早稲田3-30 | 2 LDK | 59.7㎡ | 2015年07月 |
この物件の募集は終了しています
二面バルコニーが広がる角部屋はペットの飼育が可能。食洗器やグリル付きの3口ガスアイランドキッチンや追い炊きオートバス、浴室乾燥機、三面鏡付独立洗面化粧台、タンクレストイレ等の設備に優れた分譲マンション
物件写真・間取り
物件概要
| 物件名 | シェフルール西早稲田ラヴィーナ |
|---|
| 交通機関 | 山手線・高田馬場駅 徒歩 8分 副都心線・西早稲田駅 徒歩 8分 副都心線・雑司が谷駅 徒歩 8分 |
|---|
| 間取り詳細 | LDK:13.9畳 洋室:6畳、5.5畳 |
|---|
| 建物構造 | RC |
|---|
| 所在階 / 階数 | 5階/13階建 |
|---|
| 主要採光面 | 東側 |
|---|
| 契約期間 | 2年 |
|---|
| 引渡 | 相談 |
|---|
| 現況 | 居住中 |
|---|
| 設備・条件 | 分譲賃貸/エレベーター/24時間ゴミ出し可/宅配ボックス/敷地内ごみ置き場/駐輪場/角住戸/2面採光/オートロック/ダブルロックキー/ディンプルキー/防犯カメラ/LDK12畳以上/システムキッチン/アイランドキッチン/ガスレンジ付/3口以上コンロ/グリル付/食器洗乾燥機/都市ガス/バストイレ別/オートバス/追焚機能浴室/浴室乾燥機/温水洗浄便座/洗面所独立/三面鏡付洗面化粧台/シャワー付洗面台/24時間換気システム/床暖房/バルコニー/L字型バルコニー/2面バルコニー/フローリング/全居室フローリング/室内洗濯置/クロゼット/シューズボックス/BS・CS/光ファイバー/TVインターホン/ペット相談/保証人不要/エアコン/エアコン2台/通風良好 |
|---|
| 備考 | 高級分譲賃貸マンション情報が豊富なリガール |
|---|
| 取引態様 | 媒介 |
|---|
| 情報登録日 | 2023年04月05日 |
|---|
| 情報更新日 | 2023年04月05日 |
|---|

















