- HOME
- マンションギャラリー一覧
- コンシェリア・デュー池袋
コンシェリア・デュー池袋
【 マンション 】独立洗面台や浴室乾燥機等の設備に優れた分譲マンション
| 最寄駅 | 所在地 | 間取り | 面積 | 築年月 |
|---|---|---|---|---|
東武東上線・北池袋駅 徒歩 9分 | コンシェリア・デュー池袋 | 1 K | 22.55㎡ | 2007年06月 |
この物件の募集は終了しています
南西向き、角部屋、二面採光の風通しに優れた室内は2口システムキッチンや浴室乾燥機、独立洗面台、温水洗浄便座等の設備に優れ、宅配ボックスやモニター付オートロック、ゴミ置場等の共用部も充実の分譲マンション
物件写真・間取り
物件概要
| 物件名 | コンシェリア・デュー池袋 |
|---|
| 交通機関 | 東武東上線・北池袋駅 徒歩 9分 山手線・池袋駅 徒歩 11分 埼京線・板橋駅 徒歩 17分 |
|---|
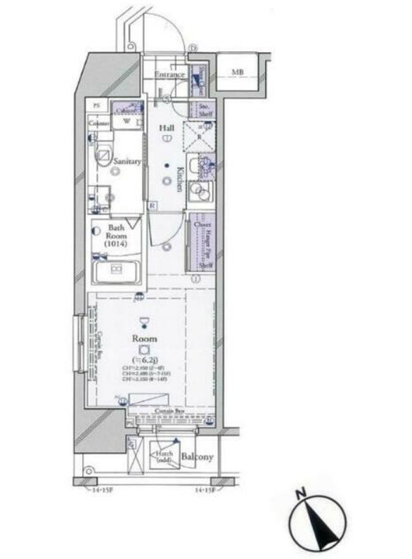
| 間取り詳細 | 6.2畳 |
|---|
| 建物構造 | RC |
|---|
| 所在階 / 階数 | 2階/15階建 |
|---|
| 主要採光面 | 南西側 |
|---|
| 契約期間 | 2年 |
|---|
| 引渡 | 即入居 |
|---|
| 現況 | 空 |
|---|
| 設備・条件 | 分譲賃貸/エレベーター/24時間ゴミ出し可/宅配ボックス/敷地内ごみ置き場/駐輪場/南西向き/角住戸/2面採光/オートロック/ダブルロックキー/ディンプルキー/防犯カメラ/システムキッチン/ガスレンジ付/2口コンロ/都市ガス/バストイレ別/浴室乾燥機/温水洗浄便座/洗面所独立/24時間換気システム/バルコニー/南面バルコニー/フローリング/室内洗濯置/クロゼット/シューズボックス/TVインターホン/即入居可/保証人不要/エアコン/通風良好 |
|---|
| 備考 | 池袋のお部屋探しはリガールにお任せください! |
|---|
| 取引態様 | 媒介 |
|---|
| 情報登録日 | 2023年04月05日 |
|---|
| 情報更新日 | 2023年04月05日 |
|---|





