- HOME
- マンションギャラリー一覧
- エルマーナ雑司が谷
エルマーナ雑司が谷
【 アパート 】追い炊きや三面鏡付洗髪洗面化粧台等の設備に優れた角部屋
| 最寄駅 | 所在地 | 間取り | 面積 | 築年月 |
|---|---|---|---|---|
有楽町線・東池袋駅 徒歩 7分 | 東京都豊島区雑司が谷1-46-1 | 1 LDK | 52.16㎡ | 2019年08月 |
この物件の募集は終了しています
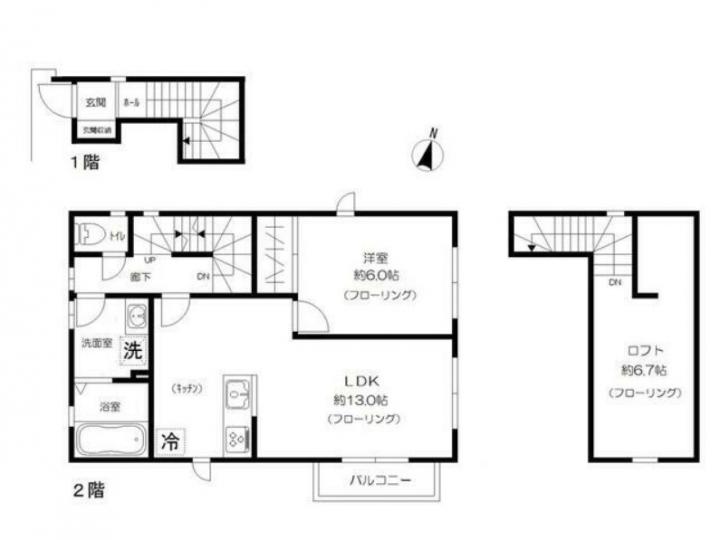
6.7畳のロフトがある南向き、二面採光の角部屋はグリル付きの3口ガスカウンターキッチンや追い炊き、浴室乾燥機、洗髪洗面化粧台、温水洗浄便座、エアコン2基、モニター付きインターホン等の設備が充実してます
物件写真・間取り
物件概要
| 物件名 | エルマーナ雑司が谷 |
|---|
| 交通機関 | 有楽町線・東池袋駅 徒歩 7分 有楽町線・護国寺駅 徒歩 9分 副都心線・雑司が谷駅 徒歩 11分 |
|---|
| 間取り詳細 | LDK:13畳 洋室:6畳 ロフト:6.7畳 |
|---|
| 建物構造 | 木造 |
|---|
| 所在階 / 階数 | 2階/2階建 |
|---|
| 主要採光面 | 南側 |
|---|
| 契約期間 | 2年 |
|---|
| 引渡 | 相談 |
|---|
| 現況 | 居住中 |
|---|
| 設備・条件 | 最上階/敷地内ごみ置き場/駐輪場/南向き/角住戸/2面採光/3面採光/南面リビング/LDK12畳以上/ロフト/システムキッチン/対面式キッチン/ガスレンジ付/3口以上コンロ/グリル付/都市ガス/バストイレ別/オートバス/追焚機能浴室/浴室乾燥機/温水洗浄便座/洗面所独立/三面鏡付洗面化粧台/シャワー付洗面台/24時間換気システム/バルコニー/南面バルコニー/フローリング/全居室フローリング/室内洗濯置/クロゼット/シューズボックス/TVインターホン/保証人不要/エアコン/エアコン2台/通風良好/陽当り良好 |
|---|
| 備考 | 池袋周辺のお部屋探しはリガールにお任せください! |
|---|
| 取引態様 | 媒介 |
|---|
| 情報登録日 | 2023年04月02日 |
|---|
| 情報更新日 | 2023年04月02日 |
|---|

























