- HOME
- マンションギャラリー一覧
- メイクスデザイン高田馬場
メイクスデザイン高田馬場
【 マンション 】【敷金、礼金不要】独立洗面台や浴室乾燥機等の設備が充実の分譲マンション
| 最寄駅 | 所在地 | 間取り | 面積 | 築年月 |
|---|---|---|---|---|
山手線・高田馬場駅 徒歩 7分 | 東京都新宿区下落合2-1-17 | 1 K | 27.4㎡ | 2013年02月 |
この物件の募集は終了しています
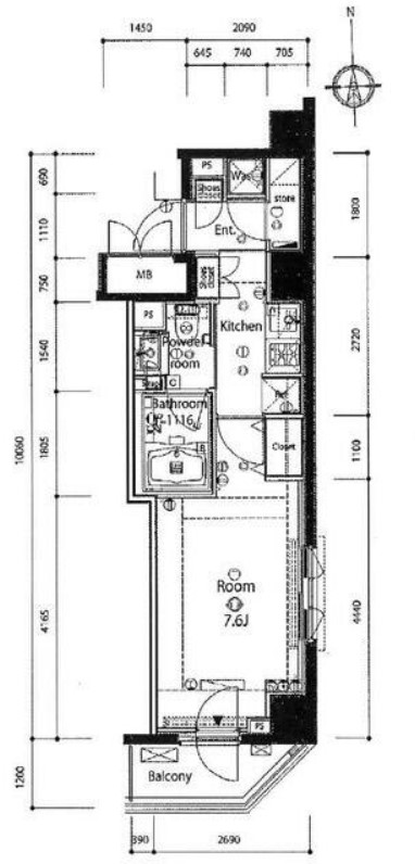
【敷金、礼金不要】南向き、角部屋、二面採光の風通しに優れた室内は2口ガスのシステムキッチンや浴室乾燥機、独立洗面台、温水洗浄便座等の設備に優れ、モニター付オートロックや宅配ボックス等の共用設備も充実。
物件写真・間取り
物件概要
| 物件名 | メイクスデザイン高田馬場 |
|---|
| 交通機関 | 山手線・高田馬場駅 徒歩 7分 山手線・目白駅 徒歩 9分 副都心線・西早稲田駅 徒歩 15分 |
|---|
| 間取り詳細 | 7.6畳 |
|---|
| 建物構造 | RC |
|---|
| 所在階 / 階数 | 3階/7階建 |
|---|
| 主要採光面 | 南側 |
|---|
| 契約期間 | 2年 |
|---|
| 引渡 | 相談 |
|---|
| 現況 | 居住中 |
|---|
| 設備・条件 | 分譲賃貸/エレベーター/24時間ゴミ出し可/宅配ボックス/敷地内ごみ置き場/駐輪場/南向き/角住戸/2面採光/オートロック/防犯カメラ/システムキッチン/ガスレンジ付/2口コンロ/都市ガス/バストイレ別/浴室乾燥機/温水洗浄便座/洗面所独立/24時間換気システム/バルコニー/南面バルコニー/フローリング/室内洗濯置/クロゼット/シューズボックス/ネット使用料不要/TVインターホン/保証人不要/エアコン/通風良好 |
|---|
| 備考 | 初期費用の安い物件をお探しの方はリガールにお任せください! |
|---|
| 取引態様 | 媒介 |
|---|
| 情報登録日 | 2023年03月16日 |
|---|
| 情報更新日 | 2023年03月16日 |
|---|















