- HOME
- マンションギャラリー一覧
- EDIT東池袋
EDIT東池袋
【 マンション 】インターネット利用料無料、ペット可のデザイナーズマンション
| 最寄駅 | 所在地 | 間取り | 面積 | 築年月 |
|---|---|---|---|---|
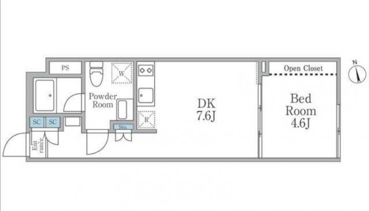
有楽町線・東池袋駅 徒歩 1分 | 東京都豊島区東池袋4-3-13 | 1 DK | 30.12㎡ | 2021年12月 |
この物件の募集は終了しています
コンクリート打ち放し、スポットライト照明がお洒落なデザイナーズマンションは小型犬、猫の飼育が可能、インターネットも無料で楽しめます。IHシステムキッチンや浴室乾燥機、独立洗面台等の設備も充実してます。
物件写真・間取り
物件概要
| 物件名 | EDIT東池袋 |
|---|
| 交通機関 | 有楽町線・東池袋駅 徒歩 1分 山手線・池袋駅 徒歩 10分 副都心線・雑司が谷駅 徒歩 10分 |
|---|
| 間取り詳細 | DK:7.6畳 洋室:4.6畳 |
|---|
| 建物構造 | RC |
|---|
| 所在階 / 階数 | 2階/4階建 |
|---|
| 主要採光面 | 東側 |
|---|
| 契約期間 | 2年 |
|---|
| 引渡 | 即入居 |
|---|
| 現況 | 空 |
|---|
| 設備・条件 | デザイナーズ/外壁コンクリート/内装コンクリート/宅配ボックス/オートロック/システムキッチン/2口コンロ/IHクッキングヒーター/都市ガス/バストイレ別/浴室乾燥機/温水洗浄便座/洗面所独立/24時間換気システム/フローリング/全居室フローリング/室内洗濯置/クロゼット/シューズボックス/BS・CS/ネット使用料不要/TVインターホン/ペット相談/保証人不要/エアコン |
|---|
| 備考 | デザイナーズマンション情報が豊富なリガール |
|---|
| 取引態様 | 媒介 |
|---|
| 情報登録日 | 2023年03月14日 |
|---|
| 情報更新日 | 2023年03月14日 |
|---|


















