- HOME
- マンションギャラリー一覧
- AXAS新板橋
AXAS新板橋
【 マンション 】【敷金、礼金0ヶ月】グリル付システムキッチン等の設備が充実
| 最寄駅 | 所在地 | 間取り | 面積 | 築年月 |
|---|---|---|---|---|
三田線・新板橋駅 徒歩 4分 | 東京都板橋区板橋4-28-10 | 1 LDK | 35.97㎡ | 2006年03月 |
この物件の募集は終了しています
【敷金、礼金0ヶ月】角部屋、二面採光の1LDKはグリル付システムキッチンや独立洗面台、浴室乾燥機、温水洗浄便座等の設備が充実。宅配ボックスやゴミ置場、防犯カメラ等の共用設備も充実の分譲マンションです。
物件写真・間取り
物件概要
| 物件名 | AXAS新板橋 |
|---|
| 交通機関 | 三田線・新板橋駅 徒歩 4分 埼京線・板橋駅 徒歩 8分 東武東上線・下板橋駅 徒歩 11分 |
|---|
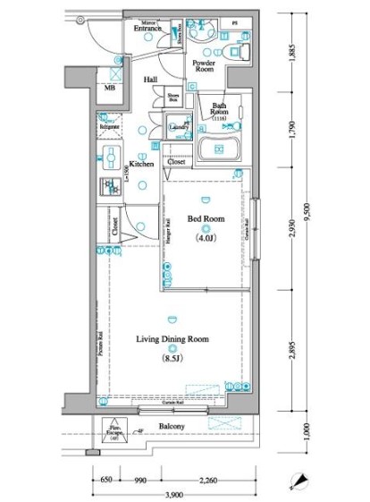
| 間取り詳細 | LD:8.5畳 洋室:4畳 |
|---|
| 建物構造 | RC |
|---|
| 所在階 / 階数 | 2階/6階建 |
|---|
| 主要採光面 | 西側 |
|---|
| 契約期間 | 2年 |
|---|
| 引渡 | 相談 |
|---|
| 現況 | 居住中 |
|---|
| 設備・条件 | 分譲賃貸/エレベーター/24時間ゴミ出し可/宅配ボックス/敷地内ごみ置き場/角住戸/2面採光/オートロック/防犯カメラ/システムキッチン/ガスレンジ付/2口コンロ/グリル付/バストイレ別/浴室乾燥機/温水洗浄便座/洗面所独立/24時間換気システム/バルコニー/フローリング/全居室フローリング/室内洗濯置/クロゼット/シューズボックス/BS・CS/CATV/光ファイバー/TVインターホン/敷金・礼金不要/保証人不要/エアコン/通風良好 |
|---|
| 備考 | 分譲賃貸マンション情報が豊富なリガール |
|---|
| 取引態様 | 媒介 |
|---|
| 情報登録日 | 2023年03月10日 |
|---|
| 情報更新日 | 2023年03月10日 |
|---|












