- HOME
- マンションギャラリー一覧
- ガーラ・レジデンス本郷三丁目
ガーラ・レジデンス本郷三丁目
【 マンション 】床暖房やカウンターキッチン、追い炊き等の設備に優れた角部屋
| 最寄駅 | 所在地 | 間取り | 面積 | 築年月 |
|---|---|---|---|---|
大江戸線・本郷三丁目駅 徒歩 6分 | 東京都文京区本郷3-20-1 | 2 LDK | 55.67㎡ | 2015年02月 |
この物件の募集は終了しています
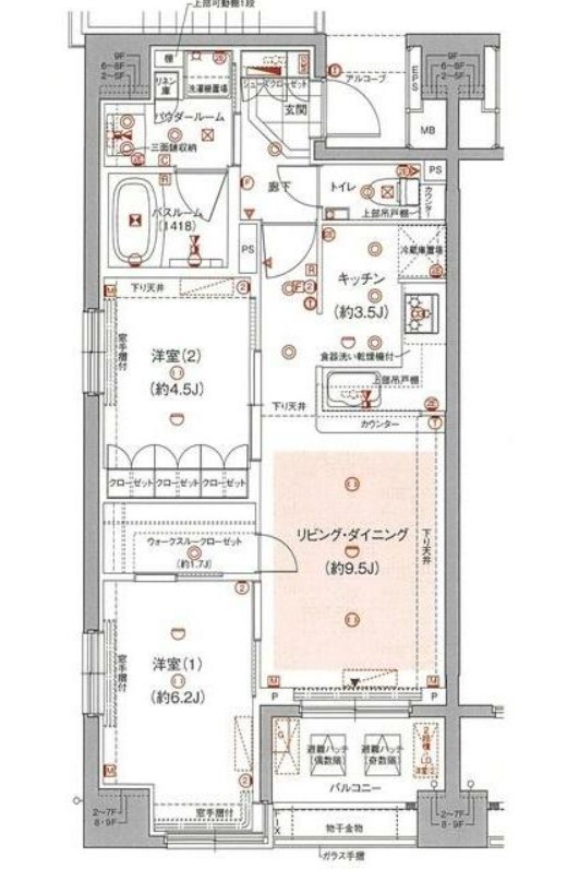
南向き、角部屋、二面採光の風通しに優れた2LDKはリビングの床暖房やグリル付3口カウンターキッチン、追い炊き、浴室乾燥機、三面鏡付独立洗面台、ウォークスルークローゼット、エアコン3基と設備が充実
物件写真・間取り
物件概要
| 物件名 | ガーラ・レジデンス本郷三丁目 |
|---|
| 交通機関 | 大江戸線・本郷三丁目駅 徒歩 6分 中央線・御茶ノ水駅 徒歩 9分 千代田線・湯島駅 徒歩 10分 |
|---|
| 間取り詳細 | LDK:13畳 洋室:6.2畳、4.5畳 |
|---|
| 建物構造 | RC |
|---|
| 所在階 / 階数 | 7階/12階建 |
|---|
| 主要採光面 | 南側 |
|---|
| 契約期間 | 2年 |
|---|
| 引渡 | 即入居 |
|---|
| 現況 | 空 |
|---|
| 設備・条件 | 分譲賃貸/高層階/エレベーター/24時間ゴミ出し可/宅配ボックス/敷地内ごみ置き場/駐輪場/南向き/角住戸/2面採光/オートロック/防犯カメラ/24時間緊急通報システム/LDK12畳以上/システムキッチン/対面式キッチン/L字型キッチン/ガスレンジ付/3口以上コンロ/グリル付/都市ガス/バストイレ別/オートバス/追焚機能浴室/浴室乾燥機/温水洗浄便座/洗面所独立/三面鏡付洗面化粧台/24時間換気システム/床暖房/バルコニー/南面バルコニー/フローリング/全居室フローリング/室内洗濯置/クロゼット/ウォークインクロゼット/ウォークスルークロゼット/シューズボックス/BS・CS/光ファイバー/TVインターホン/即入居可/保証人不要/エアコン/エアコン3台/エアコン全室/眺望良好/通風良好 |
|---|
| 備考 | 分譲賃貸マンション情報が豊富なリガール |
|---|
| 取引態様 | 媒介 |
|---|
| 情報登録日 | 2023年02月16日 |
|---|
| 情報更新日 | 2023年02月16日 |
|---|










