- HOME
- マンションギャラリー一覧
- スカイコートパレス西巣鴨
スカイコートパレス西巣鴨
【 マンション 】独立洗面台やシステムキッチン等の設備が充実した分譲マンション
| 最寄駅 | 所在地 | 間取り | 面積 | 築年月 |
|---|---|---|---|---|
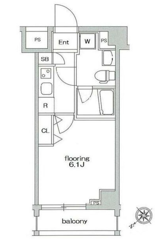
三田線・西巣鴨駅 徒歩 4分 | 東京都豊島区西巣鴨2-36-11 | 1 K | 21.23㎡ | 2013年04月 |
この物件の募集は終了しています
バイク置場や宅配ボックス、敷地内ごみ置場、モニター付オートロック等の共用設備が整う分譲賃貸マンション。独立洗面台やシステムキッチン、浴室換気乾燥機、温水洗浄便座等の室内設備も充実しております
物件写真・間取り
物件概要
| 物件名 | スカイコートパレス西巣鴨 |
|---|
| 交通機関 | 三田線・西巣鴨駅 徒歩 4分 埼京線・板橋駅 徒歩 13分 山手線・巣鴨駅 徒歩 15分 |
|---|
| 間取り詳細 | 6.1畳 |
|---|
| 建物構造 | RC |
|---|
| 所在階 / 階数 | 3階/8階建 |
|---|
| 主要採光面 | 北西側 |
|---|
| 契約期間 | 2年 |
|---|
| 引渡 | 相談 |
|---|
| 現況 | 居住中 |
|---|
| 設備・条件 | 分譲賃貸/エレベーター/24時間ゴミ出し可/宅配ボックス/敷地内ごみ置き場/駐輪場/バイク置場/オートロック/ダブルロックキー/ディンプルキー/防犯カメラ/全居室洋室/システムキッチン/ガスレンジ付/2口コンロ/都市ガス/バストイレ別/浴室乾燥機/温水洗浄便座/洗面所独立/洗面化粧台/24時間換気システム/バルコニー/フローリング/全居室フローリング/室内洗濯置/クロゼット/シューズボックス/BS・CS/BS/CS/TVインターホン/保証人不要/エアコン |
|---|
| 備考 | 分譲賃貸マンション情報が豊富なリガール |
|---|
| 取引態様 | 媒介 |
|---|
| 情報登録日 | 2023年01月18日 |
|---|
| 情報更新日 | 2023年01月18日 |
|---|




















