- HOME
- マンションギャラリー一覧
- 丘の上シエテ
丘の上シエテ
【 一戸建て 】ピアノ相談可能、駐車場付の戸建ては追い炊き等の設備が充実
| 最寄駅 | 所在地 | 間取り | 面積 | 築年月 |
|---|---|---|---|---|
丸ノ内線・新大塚駅 徒歩 9分 | 東京都豊島区南大塚1-10-4 | 3 LDK | 85.28㎡ | 2018年12月 |
この物件の募集は終了しています
駐車場付きの2018年築戸建てはピアノの演奏が可能。グリル付の3口カウンターキッチンや追い炊き、浴室乾燥機、独立洗面台、トイレ2か所、エアコン全室等の設備に優れ、ウォークインクローゼットがあり収納豊富
物件写真・間取り
物件概要
| 物件名 | 丘の上シエテ |
|---|
| 交通機関 | 丸ノ内線・新大塚駅 徒歩 9分 三田線・巣鴨駅 徒歩 11分 山手線・大塚駅 徒歩 12分 |
|---|
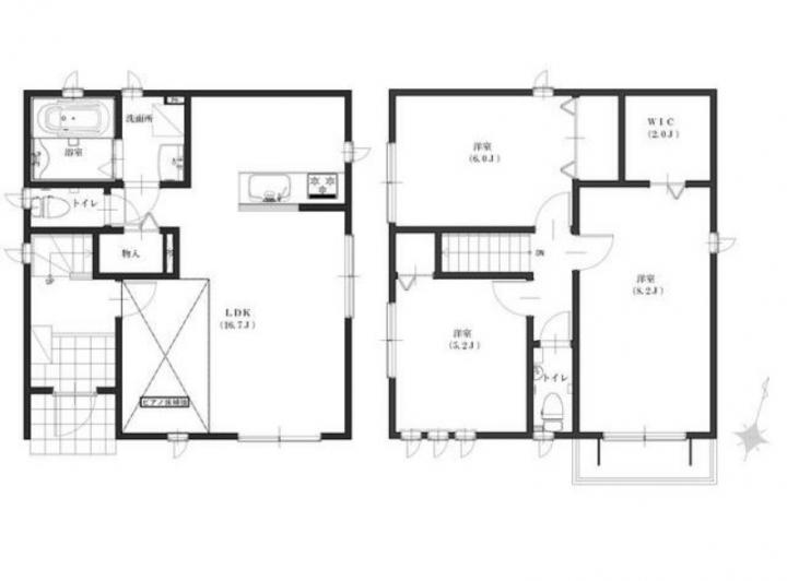
| 間取り詳細 | LDK:16.7畳 洋室:8.2畳、6畳、5.2畳 |
|---|
| 建物構造 | 木造 |
|---|
| 所在階 / 階数 | 2階建 |
|---|
| 主要採光面 | 南東側 |
|---|
| 駐車場 | 付 |
|---|
| 駐車場料金 | 無料 |
|---|
| 契約期間 | 2年 |
|---|
| 引渡 | 即入居 |
|---|
| 現況 | 空 |
|---|
| 設備・条件 | 平面駐車場/駐車場1台無料/南向き/2面採光/3面採光/LDK15畳以上/システムキッチン/対面式キッチン/ガスレンジ付/3口以上コンロ/グリル付/都市ガス/バストイレ別/オートバス/追焚機能浴室/浴室乾燥機/トイレ2ヶ所/温水洗浄便座/洗面所独立/シャワー付洗面台/24時間換気システム/バルコニー/南面バルコニー/フローリング/全居室フローリング/電動シャッター/室内洗濯置/クロゼット/ウォークインクロゼット/シューズボックス/TVインターホン/楽器相談/保証人不要/エアコン/エアコン全室/通風良好 |
|---|
| 備考 | 賃貸戸建て情報が豊富なリガール株式会社 |
|---|
| 取引態様 | 媒介 |
|---|
| 情報登録日 | 2023年01月18日 |
|---|
| 情報更新日 | 2023年01月18日 |
|---|
















