- HOME
- マンションギャラリー一覧
- シーフォルム学習院下
シーフォルム学習院下
【 マンション 】インターネット利用料無料、ペットの飼育も可能な分譲マンション
| 最寄駅 | 所在地 | 間取り | 面積 | 築年月 |
|---|---|---|---|---|
副都心線・雑司が谷駅 徒歩 6分 | 東京都豊島区高田2-10-12 | 1 K | 20.29㎡ | 2014年12月 |
この物件の募集は終了しています
ペットの飼育が可能な二面採光の角部屋はインターネット利用料が無料。2口ガスのシステムキッチンや浴室乾燥機、洗髪洗面化粧台、温水洗浄便座、エアコン等の設備が充実した2014年築分譲賃貸マンション
物件写真・間取り
物件概要
| 物件名 | シーフォルム学習院下 |
|---|
| 交通機関 | 副都心線・雑司が谷駅 徒歩 6分 山手線・目白駅 徒歩 15分 東西線・高田馬場駅 徒歩 15分 |
|---|
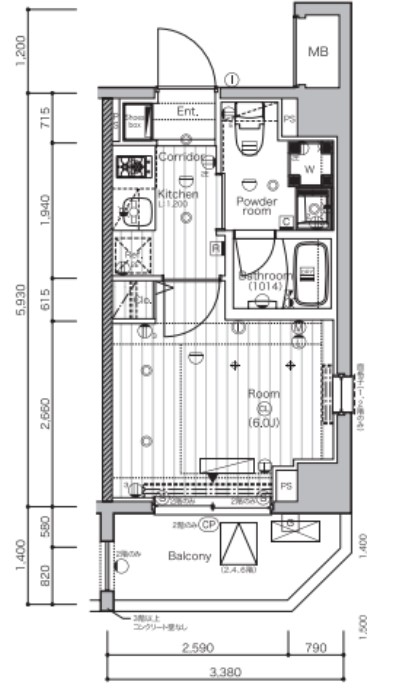
| 間取り詳細 | 6畳 |
|---|
| 建物構造 | RC |
|---|
| 所在階 / 階数 | 6階/9階建 |
|---|
| 主要採光面 | 北側 |
|---|
| 契約期間 | 2年 |
|---|
| 引渡 | 相談 |
|---|
| 現況 | 空 |
|---|
| 設備・条件 | 分譲賃貸/高層階/エレベーター/24時間ゴミ出し可/宅配ボックス/敷地内ごみ置き場/駐輪場/角住戸/2面採光/オートロック/ディンプルキー/防犯カメラ/全居室洋室/システムキッチン/ガスレンジ付/2口コンロ/都市ガス/バストイレ別/浴室乾燥機/温水洗浄便座/洗面所独立/洗面化粧台/シャワー付洗面台/24時間換気システム/バルコニー/フローリング/室内洗濯置/クロゼット/シューズボックス/BS・CS/ネット使用料不要/TVインターホン/ペット相談/保証人不要/エアコン/眺望良好/通風良好 |
|---|
| 備考 | 分譲賃貸マンション情報が豊富なリガール |
|---|
| 取引態様 | 媒介 |
|---|
| 情報登録日 | 2023年01月12日 |
|---|
| 情報更新日 | 2023年01月12日 |
|---|














