- HOME
- マンションギャラリー一覧
- メイクス氷川台アジールコート
メイクス氷川台アジールコート
【 マンション 】インターネット利用料無料、ペット可、楽器可の新築分譲賃貸マンション
| 最寄駅 | 所在地 | 間取り | 面積 | 築年月 |
|---|---|---|---|---|
有楽町線・氷川台駅 徒歩 6分 | 東京都練馬区早宮1-8 | 1 LDK | 41.91㎡ | 2023年02月 |
この物件の募集は終了しています
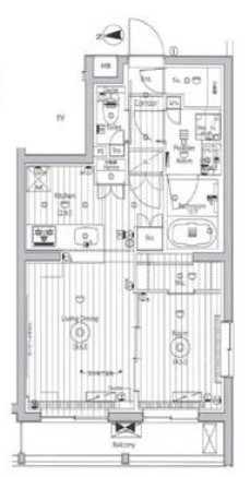
最上階、角部屋、二面採光の1LDKはウォークインクローゼットとシューズインクローゼットがあり収納豊富。グリル付きの3口カウンターキッチンや浴室乾燥機、独立洗面化粧台、温水洗浄便座等の設備が充実してます
物件写真・間取り
物件概要
| 物件名 | メイクス氷川台アジールコート |
|---|
| 交通機関 | 有楽町線・氷川台駅 徒歩 6分 西武池袋線・桜台駅 徒歩 19分 西武有楽町線・新桜台駅 徒歩 19分 |
|---|
| 建物構造 | RC |
|---|
| 所在階 / 階数 | 4階/4階建 |
|---|
| 主要採光面 | 西側 |
|---|
| 契約期間 | 2年 |
|---|
| 引渡 | 相談 |
|---|
| 現況 | 空 |
|---|
| 設備・条件 | 分譲賃貸/最上階/エレベーター/24時間ゴミ出し可/宅配ボックス/敷地内ごみ置き場/駐輪場/バイク置場/角住戸/2面採光/オートロック/ダブルロックキー/ディンプルキー/防犯カメラ/システムキッチン/対面式キッチン/ガスレンジ付/3口以上コンロ/グリル付/都市ガス/バストイレ別/浴室乾燥機/温水洗浄便座/洗面所独立/24時間換気システム/バルコニー/フローリング/全居室フローリング/室内洗濯置/クロゼット/ウォークインクロゼット/シューズボックス/シューズWIC/ネット使用料不要/TVインターホン/ペット相談/楽器相談/保証人不要/エアコン/眺望良好/通風良好 |
|---|
| 備考 | 新築物件情報が豊富なリガール |
|---|
| 取引態様 | 媒介 |
|---|
| 情報登録日 | 2023年01月05日 |
|---|
| 情報更新日 | 2023年01月05日 |
|---|






