- HOME
- マンションギャラリー一覧
- ステージファースト東大前
ステージファースト東大前
【 マンション 】インターネット利用料無料、二面バルコニーが広がる角部屋
| 最寄駅 | 所在地 | 間取り | 面積 | 築年月 |
|---|---|---|---|---|
南北線・東大前駅 徒歩 5分 | 東京都文京区西片2-18-13 | 1 LDK | 41.11㎡ | 2011年07月 |
この物件の募集は終了しています
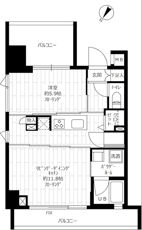
二面バルコニーが広がる角部屋、複数面採光の1LDKはインターネット利用料が無料。グリル付きの3口システムキッチンや追い炊き、浴室乾燥機付きのお風呂、洗髪洗面化粧台、シャワートイレ等の設備が充実してます
物件写真・間取り
物件概要
| 物件名 | ステージファースト東大前 |
|---|
| 交通機関 | 南北線・東大前駅 徒歩 5分 三田線・白山駅 徒歩 9分 大江戸線・春日駅 徒歩 11分 |
|---|
| 間取り詳細 | LDK:11.8畳 洋室:5.9畳 |
|---|
| 建物構造 | RC |
|---|
| 所在階 / 階数 | 6階/9階建 |
|---|
| 主要採光面 | 北西側 |
|---|
| 契約期間 | 2年 |
|---|
| 引渡 | 相談 |
|---|
| 現況 | 空 |
|---|
| 設備・条件 | 分譲賃貸/高層階/エレベーター/24時間ゴミ出し可/宅配ボックス/敷地内ごみ置き場/駐輪場/角住戸/2面採光/3面採光/オートロック/防犯カメラ/システムキッチン/対面式キッチン/ガスレンジ付/3口以上コンロ/グリル付/都市ガス/バストイレ別/オートバス/追焚機能浴室/浴室乾燥機/温水洗浄便座/洗面所独立/シャワー付洗面台/24時間換気システム/バルコニー/南面バルコニー/2面バルコニー/フローリング/全居室フローリング/室内洗濯置/クロゼット/シューズボックス/BS・CS/ネット使用料不要/TVインターホン/即入居可/保証人不要/エアコン/通風良好 |
|---|
| 備考 | 分譲マンション情報が豊富なリガール |
|---|
| 取引態様 | 媒介 |
|---|
| 情報登録日 | 2022年12月23日 |
|---|
| 情報更新日 | 2022年12月23日 |
|---|

















