- HOME
- マンションギャラリー一覧
- LEGALAND早稲田鶴巻町
LEGALAND早稲田鶴巻町
【 マンション 】仲介手数料、敷金、礼金、ネット使用料不要。フリーレント1ヶ月
| 最寄駅 | 所在地 | 間取り | 面積 | 築年月 |
|---|---|---|---|---|
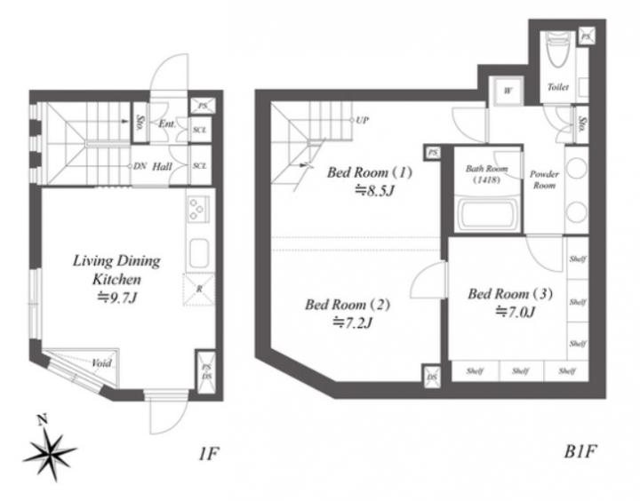
東西線・早稲田駅 徒歩 7分 | 東京都新宿区早稲田鶴巻町567-3 | 3 LDK | 73.66㎡ | 2021年06月 |
この物件の募集は終了しています
【仲介手数料不要、フリーレント1ヶ月】インターネットが無料で楽しめるメゾネットタイプのデザイナーズマンション。グリル付きの3口システムキッチンや追い炊き、浴室乾燥機、三面鏡付独立洗面台等の設備が充実
物件写真・間取り
物件概要
| 物件名 | LEGALAND早稲田鶴巻町 |
|---|
| 交通機関 | 東西線・早稲田駅 徒歩 7分 有楽町線・江戸川橋駅 徒歩 8分 大江戸線・牛込柳町駅 徒歩 14分 |
|---|
| 建物構造 | RC |
|---|
| 所在階 / 階数 | 1階/5階建 |
|---|
| 主要採光面 | 西側 |
|---|
| 契約期間 | 2年 |
|---|
| 引渡 | 相談 |
|---|
| 現況 | 居住中 |
|---|
| 設備・条件 | デザイナーズ/宅配ボックス/敷地内ごみ置き場/角住戸/2面採光/オートロック/防犯カメラ/メゾネット/システムキッチン/ガスレンジ付/3口以上コンロ/グリル付/都市ガス/バストイレ別/オートバス/追焚機能浴室/浴室乾燥機/温水洗浄便座/洗面所独立/三面鏡付洗面化粧台/24時間換気システム/フローリング/室内洗濯置/クロゼット/シューズボックス/BS・CS/ネット使用料不要/光ファイバー/TVインターホン/保証人不要/フリーレント/エアコン/エアコン3台 |
|---|
| 備考 | デザイナーズマンション情報が豊富なリガール |
|---|
| 取引態様 | 媒介 |
|---|
| 情報登録日 | 2022年12月04日 |
|---|
| 情報更新日 | 2022年12月04日 |
|---|






















