- HOME
- マンションギャラリー一覧
- セジョリ池袋West
セジョリ池袋West
【 マンション 】マイクロバブル装置やテレビ、追い炊き、浴室乾燥機付きのお風呂
| 最寄駅 | 所在地 | 間取り | 面積 | 築年月 |
|---|---|---|---|---|
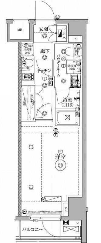
山手線・池袋駅 徒歩 9分 | 東京都豊島区池袋3-59-4 | 1 K | 25.43㎡ | 2018年01月 |
この物件の募集は終了しています
【敷金、礼金不要】南西向きの室内はペットの飼育が可能、インターネットの利用料も無料。バスタイムを楽しめる浴室テレビや追い炊き、マイクロバブル付きのお風呂や独立洗面台、温水洗浄便座等の設備も充実してます
物件写真・間取り
物件概要
| 物件名 | セジョリ池袋West |
|---|
| 交通機関 | 山手線・池袋駅 徒歩 9分 有楽町線・要町駅 徒歩 12分 東武東上線・北池袋駅 徒歩 18分 |
|---|
| 建物構造 | RC |
|---|
| 所在階 / 階数 | 2階/6階建 |
|---|
| 主要採光面 | 南西側 |
|---|
| 契約期間 | 2年 |
|---|
| 引渡 | 相談 |
|---|
| 現況 | 居住中 |
|---|
| 設備・条件 | 分譲賃貸/エレベーター/24時間ゴミ出し可/宅配ボックス/敷地内ごみ置き場/駐輪場/バイク置場/南西向き/オートロック/防犯カメラ/システムキッチン/ガスレンジ付/2口コンロ/都市ガス/バストイレ別/オートバス/追焚機能浴室/浴室乾燥機/TV付浴室/温水洗浄便座/洗面所独立/洗面化粧台/24時間換気システム/バルコニー/南面バルコニー/フローリング/室内洗濯置/クロゼット/シューズボックス/BS・CS/ネット使用料不要/TVインターホン/ペット相談/敷金・礼金不要/保証人不要/エアコン/通風良好 |
|---|
| 備考 | ペット可物件情報が豊富なリガール |
|---|
| 取引態様 | 媒介 |
|---|
| 情報登録日 | 2022年11月06日 |
|---|
| 情報更新日 | 2022年11月06日 |
|---|















