- HOME
- マンションギャラリー一覧
- ステージファースト後楽園
ステージファースト後楽園
【 マンション 】インターネット利用料無料の室内は独立洗面台等の設備が充実
| 最寄駅 | 所在地 | 間取り | 面積 | 築年月 |
|---|---|---|---|---|
丸ノ内線・後楽園駅 徒歩 12分 | 東京都文京区春日2-5-6 | 1 LDK | 45.5㎡ | 2010年02月 |
この物件の募集は終了しています
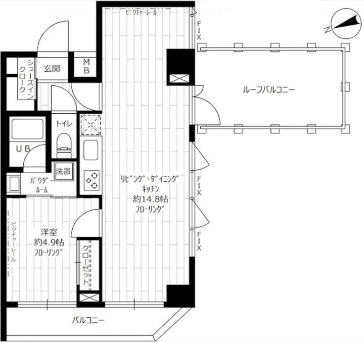
ルーフバルコニー含む二面バルコニーが広がる最上階の角部屋はインターネット利用料が無料。グリル付きの3口システムキッチンや追い炊き、浴室乾燥機等の設備に優れ、シューズインクローゼットがあり収納豊富です
物件写真・間取り
物件概要
| 物件名 | ステージファースト後楽園 |
|---|
| 交通機関 | 丸ノ内線・後楽園駅 徒歩 12分 有楽町線・飯田橋駅 徒歩 12分 三田線・春日駅 徒歩 13分 |
|---|
| 間取り詳細 | LDK:14.8畳 洋室:4.9畳 |
|---|
| 建物構造 | RC |
|---|
| 所在階 / 階数 | 8階/8階建 |
|---|
| 主要採光面 | 南側 |
|---|
| 契約期間 | 2年 |
|---|
| 引渡 | 即入居 |
|---|
| 現況 | 空 |
|---|
| 設備・条件 | 分譲賃貸/高層階/最上階/エレベーター/24時間ゴミ出し可/宅配ボックス/敷地内ごみ置き場/駐輪場/南向き/角住戸/2面採光/オートロック/カードキー/防犯カメラ/LDK12畳以上/システムキッチン/ガスレンジ付/3口以上コンロ/グリル付/都市ガス/バストイレ別/オートバス/追焚機能浴室/浴室乾燥機/温水洗浄便座/洗面所独立/24時間換気システム/バルコニー/ルーフバルコニー/南面バルコニー/2面バルコニー/フローリング/全居室フローリング/室内洗濯置/クロゼット/シューズボックス/シューズWIC/BS・CS/CATV/ネット使用料不要/TVインターホン/即入居可/保証人不要/エアコン/エアコン2台/エアコン全室/眺望良好/通風良好 |
|---|
| 備考 | 分譲賃貸マンション情報が豊富なリガール |
|---|
| 取引態様 | 媒介 |
|---|
| 情報登録日 | 2022年10月24日 |
|---|
| 情報更新日 | 2022年10月24日 |
|---|















