- HOME
- マンションギャラリー一覧
- クオリタス護国寺
クオリタス護国寺
【 マンション 】【敷金、礼金、仲介手数料不要】インターネット利用料が無料
| 最寄駅 | 所在地 | 間取り | 面積 | 築年月 |
|---|---|---|---|---|
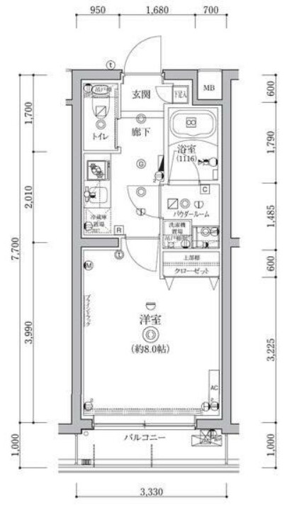
有楽町線・護国寺駅 徒歩 6分 | 東京都豊島区雑司が谷1-33-12 | 1 K | 25.22㎡ | 2021年10月 |
この物件の募集は終了しています
【仲介手数料、敷金、礼金不要】小型犬、猫の飼育が可能、インターネットが無料で楽しめる最上階の室内は追炊きや浴室乾燥機、2口ガスのシステムキッチン、独立洗面台、温水洗浄便座等の設備が充実してます。
物件写真・間取り
物件概要
| 物件名 | クオリタス護国寺 |
|---|
| 交通機関 | 有楽町線・護国寺駅 徒歩 6分 副都心線・雑司が谷駅 徒歩 11分 有楽町線・東池袋駅 徒歩 11分 |
|---|
| 間取り詳細 | 8畳 |
|---|
| 建物構造 | RC |
|---|
| 所在階 / 階数 | 3階/3階建 |
|---|
| 主要採光面 | 北東側 |
|---|
| 契約期間 | 2年 |
|---|
| 引渡 | 相談 |
|---|
| 現況 | 居住中 |
|---|
| 設備・条件 | 最上階/エレベーター/24時間ゴミ出し可/宅配ボックス/敷地内ごみ置き場/平面駐車場/駐輪場/オートロック/防犯カメラ/システムキッチン/ガスレンジ付/2口コンロ/都市ガス/バストイレ別/オートバス/追焚機能浴室/浴室乾燥機/温水洗浄便座/洗面所独立/24時間換気システム/バルコニー/フローリング/室内洗濯置/クロゼット/シューズボックス/BS・CS/ネット使用料不要/TVインターホン/ペット相談/保証人不要/エアコン |
|---|
| 備考 | ペット可物件をお探しの方はリガールにお任せください! |
|---|
| 取引態様 | 媒介 |
|---|
| 情報登録日 | 2022年10月16日 |
|---|
| 情報更新日 | 2022年10月16日 |
|---|




















