- HOME
- マンションギャラリー一覧
- ガリシアグランデ江戸川橋
ガリシアグランデ江戸川橋
【 マンション 】カウンターキッチンや独立洗面台等の設備に優れた分譲マンション
| 最寄駅 | 所在地 | 間取り | 面積 | 築年月 |
|---|---|---|---|---|
有楽町線・江戸川橋駅 徒歩 5分 | 東京都文京区水道2-5-17 | 1 LDK | 40.95㎡ | 2014年02月 |
この物件の募集は終了しています
グリル付き3口ガスのカウンターキッチンや追い炊き、浴室乾燥機、独立洗面台、温水洗浄便座等の設備に優れ、モニター付きオートロック等のセキュリティも充実の1LDK。宅配ボックスやゴミ置場等の共用部も充実
物件写真・間取り
物件概要
| 物件名 | ガリシアグランデ江戸川橋 |
|---|
| 交通機関 | 有楽町線・江戸川橋駅 徒歩 5分 総武線・飯田橋駅 徒歩 8分 東西線・神楽坂駅 徒歩 11分 |
|---|
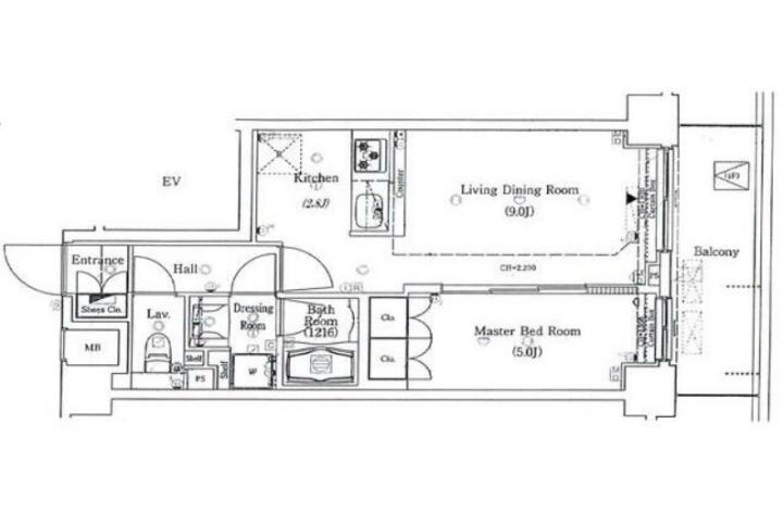
| 間取り詳細 | LDK:9畳 洋室:5畳 |
|---|
| 建物構造 | RC |
|---|
| 所在階 / 階数 | 4階/9階建 |
|---|
| 主要採光面 | 南側 |
|---|
| 契約期間 | 2年 |
|---|
| 引渡 | 相談 |
|---|
| 現況 | 居住中 |
|---|
| 設備・条件 | 分譲賃貸/エレベーター/24時間ゴミ出し可/宅配ボックス/敷地内ごみ置き場/駐輪場/南向き/オートロック/ディンプルキー/防犯カメラ/システムキッチン/対面式キッチン/ガスレンジ付/3口以上コンロ/グリル付/都市ガス/バストイレ別/オートバス/追焚機能浴室/浴室乾燥機/温水洗浄便座/洗面所独立/24時間換気システム/バルコニー/フローリング/全居室フローリング/室内洗濯置/クロゼット/シューズボックス/光ファイバー/TVインターホン/保証人不要/エアコン/通風良好 |
|---|
| 備考 | 分譲賃貸マンション情報が豊富なリガール |
|---|
| 取引態様 | 媒介 |
|---|
| 情報登録日 | 2022年10月04日 |
|---|
| 情報更新日 | 2022年10月04日 |
|---|


















