- HOME
- マンションギャラリー一覧
- ビスタ竹早
ビスタ竹早
【 マンション 】L字型カウンターキッチンや追い炊き等の設備に優れた角部屋
| 最寄駅 | 所在地 | 間取り | 面積 | 築年月 |
|---|---|---|---|---|
丸ノ内線・茗荷谷駅 徒歩 5分 | 東京都文京区小石川5-10-18 | 3 LDK | 83.15㎡ | 1987年06月 |
この物件の募集は終了しています
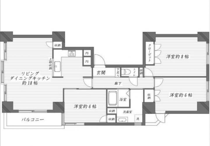
角部屋、二面採光、南東向きの3LDKはインターネット利用料が無料。グリル付きのL字型3口カウンターキッチンや追い炊き、浴室乾燥機、三面鏡付洗髪洗面化粧台、温水洗浄便座、エアコン等の設備が充実してます。
物件写真・間取り
物件概要
| 物件名 | ビスタ竹早 |
|---|
| 交通機関 | 丸ノ内線・茗荷谷駅 徒歩 5分 有楽町線・江戸川橋駅 徒歩 17分 南北線・後楽園駅 徒歩 21分 |
|---|
| 間取り詳細 | LDK:18畳 洋室:8畳、6畳、6畳 |
|---|
| 建物構造 | SRC |
|---|
| 所在階 / 階数 | 5階/8階建 |
|---|
| 主要採光面 | 北東側 |
|---|
| 契約期間 | 2年 |
|---|
| 引渡 | 相談 |
|---|
| 現況 | 空 |
|---|
| 設備・条件 | 二重床構造/二重天井構造/デザイナーズ/外壁タイル張り/エレベーター/敷地内ごみ置き場/駐輪場/角住戸/2面採光/オートロック/ディンプルキー/防犯カメラ/LDK18畳以上/全居室6畳以上/システムキッチン/対面式キッチン/L字型キッチン/ガスレンジ付/3口以上コンロ/グリル付/都市ガス/バストイレ別/オートバス/追焚機能浴室/浴室乾燥機/温水洗浄便座/洗面所独立/三面鏡付洗面化粧台/シャワー付洗面台/24時間換気システム/バルコニー/フローリング/全居室フローリング/室内洗濯置/クロゼット/シューズボックス/BS/CATV/ネット使用料不要/光ファイバー/TVインターホン/リノベーション/保証人不要/エアコン/通風良好 |
|---|
| 備考 | 高級賃貸マンション情報が豊富なリガール |
|---|
| 取引態様 | 媒介 |
|---|
| 情報登録日 | 2022年09月29日 |
|---|
| 情報更新日 | 2022年09月29日 |
|---|




















