- HOME
- マンションギャラリー一覧
- ステージグランデ神楽坂
ステージグランデ神楽坂
【 マンション 】インターネット利用料無料、神楽坂駅徒歩6分の分譲マンション
| 最寄駅 | 所在地 | 間取り | 面積 | 築年月 |
|---|---|---|---|---|
東西線・神楽坂駅 徒歩 6分 | 東京都新宿区改代町21-2 | 1 LDK | 41.08㎡ | 2011年08月 |
この物件の募集は終了しています
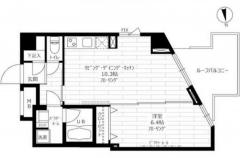
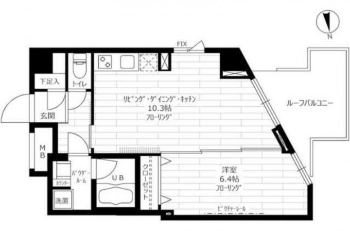
ルーフバルコニーが広がる最上階、二面採光の角部屋はインターネット利用料が無料。2口ガスのシステムキッチンや洗髪洗面化粧台、追い炊き、浴室乾燥機、温水洗浄便座、エアコン等の設備に優れた分譲マンション
物件写真・間取り
物件概要
| 物件名 | ステージグランデ神楽坂 |
|---|
| 交通機関 | 東西線・神楽坂駅 徒歩 6分 有楽町線・江戸川橋駅 徒歩 3分 大江戸線・牛込神楽坂駅 徒歩 12分 |
|---|
| 間取り詳細 | LDK:10.3畳 洋室:6.4畳 |
|---|
| 建物構造 | RC |
|---|
| 所在階 / 階数 | 8階/8階建 |
|---|
| 主要採光面 | 西側 |
|---|
| 契約期間 | 2年 |
|---|
| 引渡 | 即入居 |
|---|
| 現況 | 空 |
|---|
| 設備・条件 | 分譲賃貸/高層階/最上階/エレベーター/24時間ゴミ出し可/宅配ボックス/敷地内ごみ置き場/駐輪場/角住戸/南西角住戸/2面採光/南面リビング/オートロック/カードキー/防犯カメラ/全居室6畳以上/システムキッチン/ガスレンジ付/2口コンロ/都市ガス/バストイレ別/オートバス/追焚機能浴室/浴室乾燥機/温水洗浄便座/洗面所独立/洗面化粧台/シャワー付洗面台/24時間換気システム/バルコニー/ルーフバルコニー/フローリング/全居室フローリング/室内洗濯置/クロゼット/シューズボックス/BS・CS/ネット使用料不要/TVインターホン/即入居可/保証人不要/エアコン/眺望良好/通風良好 |
|---|
| 備考 | 分譲賃貸マンション情報が豊富なリガール |
|---|
| 取引態様 | 媒介 |
|---|
| 情報登録日 | 2022年09月18日 |
|---|
| 情報更新日 | 2022年09月18日 |
|---|



















