- HOME
- マンションギャラリー一覧
- プラウド椎名町ガーデンテラス
プラウド椎名町ガーデンテラス
【 マンション 】床暖房や食洗器、浄水器、ミストサウナ等の設備に優れた新築分譲
| 最寄駅 | 所在地 | 間取り | 面積 | 築年月 |
|---|---|---|---|---|
西武池袋線・椎名町駅 徒歩 7分 | 東京都豊島区南長崎2-6-11 | 1 LDK | 61.3㎡ | 2022年06月 |
この物件の募集は終了しています
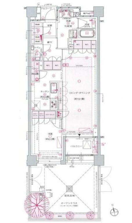
21.64㎡のオープンテラスが広がる南向きの1LDKはシューズインクローゼットやパントリーがあり収納豊富。床暖房やミストサウナ、追い炊き、食洗器、浄水器、カウンターキッチン等の設備が充実した分譲賃貸マンション
物件写真・間取り
物件概要
| 物件名 | プラウド椎名町ガーデンテラス |
|---|
| 交通機関 | 西武池袋線・椎名町駅 徒歩 7分 大江戸線・落合南長崎駅 徒歩 11分 西武新宿線・下落合駅 徒歩 15分 |
|---|
| 間取り詳細 | LDK:17.5畳 洋室:6畳 |
|---|
| 建物構造 | RC |
|---|
| 所在階 / 階数 | 1階/5階建 |
|---|
| 主要採光面 | 南側 |
|---|
| 契約期間 | 2年 |
|---|
| 引渡 | 即入居 |
|---|
| 現況 | 空 |
|---|
| 設備・条件 | 分譲賃貸/エレベーター/24時間ゴミ出し可/宅配ボックス/敷地内ごみ置き場/駐輪場/南向き/南面2室/南面リビング/オートロック/ダブルロックキー/ディンプルキー/防犯カメラ/24時間緊急通報システム/LDK15畳以上/全居室6畳以上/システムキッチン/対面式キッチン/ガスレンジ付/3口以上コンロ/グリル付/食品庫/食器洗乾燥機/浄水器/都市ガス/バストイレ別/オートバス/追焚機能浴室/浴室乾燥機/ミストサウナ/温水洗浄便座/洗面所独立/三面鏡付洗面化粧台/シャワー付洗面台/24時間換気システム/床暖房/バルコニー/テラス/フローリング/全居室フローリング/室内洗濯置/クロゼット/シューズボックス/シューズWIC/BS・CS/CATV/ネット使用料不要/TVインターホン/即入居可/保証人不要/エアコン |
|---|
| 備考 | 分譲賃貸マンション情報が豊富なリガール |
|---|
| 取引態様 | 媒介 |
|---|
| 情報登録日 | 2022年09月06日 |
|---|
| 情報更新日 | 2022年09月06日 |
|---|




















