- HOME
- マンションギャラリー一覧
- ルピナス池袋
ルピナス池袋
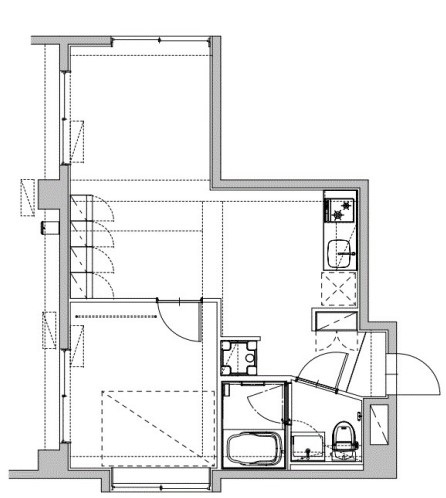
【 マンション 】デザイナーズリノベーション済みの1LDKは追炊き等の充実設備
| 最寄駅 | 所在地 | 間取り | 面積 | 築年月 |
|---|---|---|---|---|
山手線・池袋駅 徒歩 4分 | 東京都豊島区東池袋1-31-2 | 1 LDK | 37.78㎡ | 1979年12月 |
この物件の募集は終了しています
2022年8月にデザイナーズリノベーションされた南向き、最上階、角部屋の1LDKはお部屋をお洒落に彩れるコレクション棚があります。追い炊きや浴室乾燥機、独立洗面化粧台、システムキッチン等の設備も充実
物件写真・間取り
物件概要
| 物件名 | ルピナス池袋 |
|---|
| 交通機関 | 山手線・池袋駅 徒歩 4分 有楽町線・東池袋駅 徒歩 8分 都電荒川線・東池袋四丁目駅 徒歩 11分 |
|---|
| 建物構造 | RC |
|---|
| 所在階 / 階数 | 7階/7階建 |
|---|
| 主要採光面 | 南側 |
|---|
| 契約期間 | 2年 |
|---|
| 引渡 | 即入居 |
|---|
| 現況 | 空 |
|---|
| 設備・条件 | デザイナーズ/外壁タイル張り/分譲賃貸/高層階/最上階/エレベーター/宅配ボックス/敷地内ごみ置き場/南向き/角住戸/2面採光/3面採光/南面リビング/オートロック/防犯カメラ/システムキッチン/ガスレンジ付/2口コンロ/都市ガス/バストイレ別/オートバス/追焚機能浴室/浴室乾燥機/温水洗浄便座/洗面所独立/24時間換気システム/フローリング/全居室フローリング/室内洗濯置/クロゼット/シューズボックス/TVインターホン/リノベーション/即入居可/保証人不要/エアコン/通風良好 |
|---|
| 備考 | デザイナーズマンション情報が豊富なリガール |
|---|
| 取引態様 | 媒介 |
|---|
| 情報登録日 | 2022年08月29日 |
|---|
| 情報更新日 | 2022年08月29日 |
|---|




















