- HOME
- マンションギャラリー一覧
- KAJITA APARTMENTS
KAJITA APARTMENTS
【 マンション 】床暖房や独立洗面台等の設備に優れたデザイナーズマンション
| 最寄駅 | 所在地 | 間取り | 面積 | 築年月 |
|---|---|---|---|---|
山手線・巣鴨駅 徒歩 8分 | 東京都文京区千石3-25-4 | 1 K | 32.06㎡ | 2022年07月 |
この物件の募集は終了しています
角部屋、二面採光、コンクリート打ちっぱなしの1DKは床暖房や2口ガスのシステムキッチン、浴室乾燥機、温水洗浄便座等の設備が充実。宅配ボックスやゴミ置場、エレベーター等の共用部も充実のデザイナーズ
物件写真・間取り
物件概要
| 物件名 | KAJITA APARTMENTS |
|---|
| 交通機関 | 山手線・巣鴨駅 徒歩 8分 丸ノ内線・新大塚駅 徒歩 11分 三田線・千石駅 徒歩 11分 |
|---|
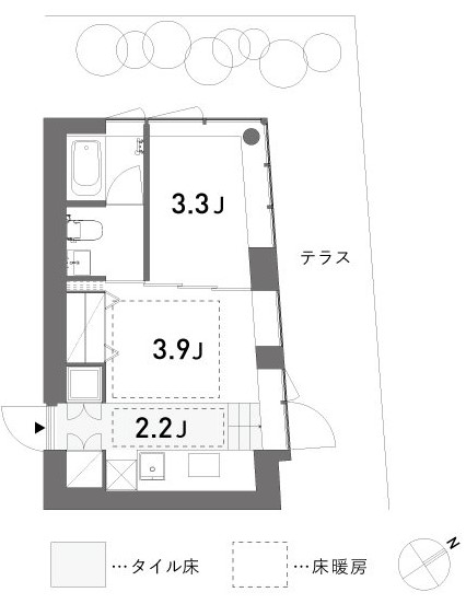
| 間取り詳細 | DK:6.1畳 洋室:3.3畳 |
|---|
| 建物構造 | RC |
|---|
| 所在階 / 階数 | 1階/5階建 |
|---|
| 主要採光面 | 北東側 |
|---|
| 契約期間 | 2年 |
|---|
| 引渡 | 相談 |
|---|
| 現況 | 空 |
|---|
| 設備・条件 | デザイナーズ/外壁コンクリート/内装コンクリート/エレベーター/24時間ゴミ出し可/宅配ボックス/敷地内ごみ置き場/角住戸/2面採光/オートロック/防犯カメラ/システムキッチン/ガスレンジ付/2口コンロ/バストイレ別/浴室乾燥機/温水洗浄便座/洗面所独立/24時間換気システム/床暖房/テラス/フローリング/全居室フローリング/室内洗濯置/クロゼット/シューズボックス/光ファイバー/TVインターホン/保証人不要/エアコン/通風良好 |
|---|
| 備考 | デザイナーズマンション情報が豊富なリガール |
|---|
| 取引態様 | 媒介 |
|---|
| 情報登録日 | 2022年06月30日 |
|---|
| 情報更新日 | 2022年06月30日 |
|---|














