- HOME
- マンションギャラリー一覧
- ROYGENT SUGAMO WEST
ROYGENT SUGAMO WEST
【 マンション 】仲介手数料、礼金不要。ペット可、メゾネットタイプの最上階
| 最寄駅 | 所在地 | 間取り | 面積 | 築年月 |
|---|---|---|---|---|
山手線・巣鴨駅 徒歩 7分 | 東京都豊島区巣鴨3-18-3 | 3 LDK | 113.25㎡ | 2020年02月 |
この物件の募集は終了しています
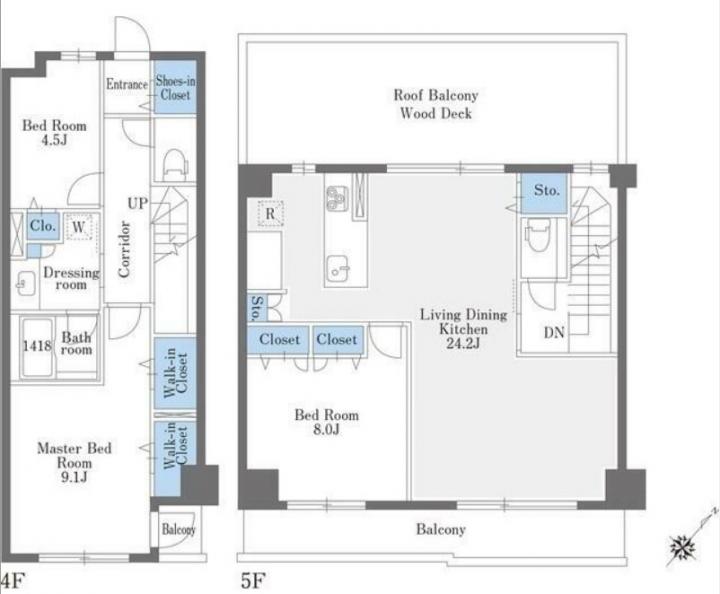
最上階、角部屋、ウッドデッキのルーフバルコニー含む2面バルコニーの風通しに優れた3LDK。室内はペットの飼育が可能、3口カウンターキッチンや追い炊き、ウォークインクローゼット2か所等の設備が充実
物件写真・間取り
物件概要
| 物件名 | ROYGENT SUGAMO WEST |
|---|
| 交通機関 | 山手線・巣鴨駅 徒歩 7分 山手線・大塚駅 徒歩 10分 南北線・駒込駅 徒歩 15分 |
|---|
| 間取り詳細 | LDK:24.2畳 洋室:9.1畳、8畳、4.5畳 |
|---|
| 建物構造 | RC |
|---|
| 所在階 / 階数 | 4-5階/5階建 |
|---|
| 主要採光面 | 南東側 |
|---|
| 契約期間 | 2年 |
|---|
| 引渡 | 即入居 |
|---|
| 現況 | 空 |
|---|
| 設備・条件 | 最上階/エレベーター/24時間ゴミ出し可/宅配ボックス/敷地内ごみ置き場/平面駐車場/駐輪場/バイク置場/東南向き/2面採光/南面リビング/オートロック/防犯カメラ/日勤管理/LDK20畳以上/メゾネット/システムキッチン/対面式キッチン/ガスレンジ付/3口以上コンロ/グリル付/都市ガス/バストイレ別/オートバス/追焚機能浴室/浴室乾燥機/温水洗浄便座/洗面所独立/三面鏡付洗面化粧台/シャワー付洗面台/24時間換気システム/バルコニー/ルーフバルコニー/南面バルコニー/両面バルコニー/ウッドデッキ/全居室フローリング/室内洗濯置/クロゼット/ウォークインクロゼット/ウォークインクロゼット2/シューズボックス/シューズWIC/光ファイバー/TVインターホン/ペット相談/礼金不要/仲介手数料不要/保証人不要/エアコン/エアコン全室/通風良好 |
|---|
| 備考 | 高級賃貸物件情報が豊富なリガール株式会社 |
|---|
| 取引態様 | 媒介 |
|---|
| 情報登録日 | 2022年06月27日 |
|---|
| 情報更新日 | 2022年06月27日 |
|---|




















