- HOME
- マンションギャラリー一覧
- コンシェリア駒込EAST
コンシェリア駒込EAST
【 マンション 】カウンターキッチンや追い炊き等の設備に優れた分譲マンション
| 最寄駅 | 所在地 | 間取り | 面積 | 築年月 |
|---|---|---|---|---|
山手線・駒込駅 徒歩 3分 | 東京都北区中里1-22-5 | 1 LDK | 41.94㎡ | 2008年08月 |
この物件の募集は終了しています
角部屋、二面採光の風通しに優れた二重床の1LDKは小型犬、猫の飼育が可能。追い炊きや浴室乾燥機付きのお風呂、独立洗面台、カウンターキッチン、温水洗浄便座等の設備に優れ、インターネット利用料が無料です。
物件写真・間取り
物件概要
| 物件名 | コンシェリア駒込EAST |
|---|
| 交通機関 | 山手線・駒込駅 徒歩 3分 京浜東北線・田端駅 徒歩 13分 三田線・巣鴨駅 徒歩 19分 |
|---|
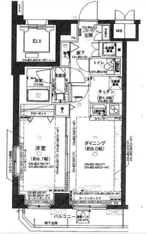
| 間取り詳細 | LDK:9.9畳 洋室:6.7畳 |
|---|
| 建物構造 | RC |
|---|
| 所在階 / 階数 | 3階/8階建 |
|---|
| 主要採光面 | 南東側 |
|---|
| 契約期間 | 2年 |
|---|
| 引渡 | 相談 |
|---|
| 現況 | 居住中 |
|---|
| 設備・条件 | 分譲賃貸/エレベーター/24時間ゴミ出し可/宅配ボックス/敷地内ごみ置き場/駐輪場/東南向き/角住戸/2面採光/オートロック/ダブルロックキー/ディンプルキー/防犯カメラ/システムキッチン/対面式キッチン/2口コンロ/IHクッキングヒーター/グリル付/都市ガス/バストイレ別/オートバス/追焚機能浴室/浴室乾燥機/温水洗浄便座/洗面所独立/24時間換気システム/バルコニー/南面バルコニー/フローリング/全居室フローリング/室内洗濯置/クロゼット/シューズボックス/BS・CS/CATV/ネット使用料不要/TVインターホン/マルチメディアコンセント/ペット相談/保証人不要/エアコン/通風良好 |
|---|
| 備考 | 高級分譲賃貸マンション情報が豊富 |
|---|
| 取引態様 | 媒介 |
|---|
| 情報登録日 | 2022年06月22日 |
|---|
| 情報更新日 | 2022年06月22日 |
|---|









