- HOME
- マンションギャラリー一覧
- COCOCUBE江古田South
COCOCUBE江古田South
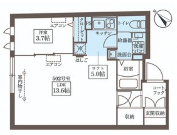
【 マンション 】5畳のロフトがある最上階の角部屋は独立洗面台等の設備が充実
| 最寄駅 | 所在地 | 間取り | 面積 | 築年月 |
|---|---|---|---|---|
西武池袋線・江古田駅 徒歩 6分 | 東京都練馬区旭丘1-37-2 | 1 LDK | 40.64㎡ | 2020年12月 |
この物件の募集は終了しています
5畳のロフトがある最上階、角部屋の1LDKは2口ガスのシステムキッチンや浴室乾燥機、独立洗面台、温水洗浄便座等の設備が整い、オートロックやモニターフォン、ダブルロック、防犯カメラ等の防犯設備も充実。
物件写真・間取り
物件概要
| 物件名 | COCOCUBE江古田South |
|---|
| 交通機関 | 西武池袋線・江古田駅 徒歩 6分 大江戸線・新江古田駅 徒歩 7分 西武有楽町線・新桜台駅 徒歩 13分 |
|---|
| 間取り詳細 | LDK:13.6畳 洋室:3.7畳 |
|---|
| 建物構造 | RC |
|---|
| 所在階 / 階数 | 5階/5階建 |
|---|
| 主要採光面 | 北西側 |
|---|
| 契約期間 | 2年 |
|---|
| 引渡 | 即入居 |
|---|
| 現況 | 空 |
|---|
| 設備・条件 | デザイナーズ/外壁コンクリート/宅配ボックス/角住戸/オートロック/ダブルロックキー/防犯カメラ/LDK12畳以上/ロフト/システムキッチン/ガスレンジ付/2口コンロ/都市ガス/バストイレ別/追焚機能浴室/浴室乾燥機/温水洗浄便座/洗面所独立/24時間換気システム/フローリング/全居室フローリング/室内洗濯置/クロゼット/シューズボックス/BS・CS/CATV/光ファイバー/TVインターホン/即入居可/保証人不要/エアコン/エアコン全室/眺望良好 |
|---|
| 備考 | デザイナーズ物件情報が豊富なリガール株式会社 |
|---|
| 取引態様 | 媒介 |
|---|
| 情報登録日 | 2022年06月11日 |
|---|
| 情報更新日 | 2022年06月11日 |
|---|
















