- HOME
- マンションギャラリー一覧
- 高田一丁目戸建
高田一丁目戸建
【 一戸建て 】駐車場付き戸建て。独立洗面台や追い炊き等の設備が充実
| 最寄駅 | 所在地 | 間取り | 面積 | 築年月 |
|---|---|---|---|---|
山手線・高田馬場駅 徒歩 13分 | 東京都豊島区高田1-24-4 | 3 LDK | 72.03㎡ | 2003年07月 |
この物件の募集は終了しています
南向き、全室複数面採光の風通しに優れた2SLDK。駐車場が無料で利用可能な戸建てはグリル付きの3口システムキッチンや追炊き、浴室乾燥機、トイレが2か所、三面鏡付洗髪洗面化粧台等の設備が充実してます。
物件写真・間取り
物件概要
| 物件名 | 高田一丁目戸建 |
|---|
| 交通機関 | 山手線・高田馬場駅 徒歩 13分 副都心線・雑司が谷駅 徒歩 8分 都電荒川線・学習院下駅 徒歩 6分 |
|---|
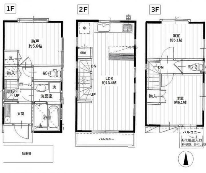
| 間取り詳細 | LDK:13.4畳 洋室:6.1畳、5.1畳、5.6畳 |
|---|
| 建物構造 | 木造 |
|---|
| 所在階 / 階数 | 3階建 |
|---|
| 主要採光面 | 南側 |
|---|
| 契約期間 | 2年 |
|---|
| 引渡 | 即入居 |
|---|
| 現況 | 空 |
|---|
| 設備・条件 | 平面駐車場/駐車場1台無料/南向き/2面採光/3面採光/南面リビング/LDK12畳以上/全居室洋室/システムキッチン/ガスレンジ付/3口以上コンロ/グリル付/都市ガス/バストイレ別/オートバス/追焚機能浴室/浴室乾燥機/トイレ2ヶ所/温水洗浄便座/洗面所独立/三面鏡付洗面化粧台/シャワー付洗面台/24時間換気システム/バルコニー/南面バルコニー/フローリング/全居室フローリング/室内洗濯置/クロゼット/シューズボックス/TVインターホン/即入居可/保証人不要/エアコン/通風良好 |
|---|
| 備考 | 戸建てをお探しの方はリガールにお任せください |
|---|
| 取引態様 | 媒介 |
|---|
| 情報登録日 | 2022年06月09日 |
|---|
| 情報更新日 | 2022年06月09日 |
|---|




















