- HOME
- マンションギャラリー一覧
- ダイナシティ城北中央公園
ダイナシティ城北中央公園
【 マンション 】床暖房や3口カウンターキッチン、追い炊き等の設備が充実の高級分譲賃貸マンション
| 最寄駅 | 所在地 | 間取り | 面積 | 築年月 |
|---|---|---|---|---|
東武東上線・上板橋駅 徒歩 11分 | 東京都練馬区錦1-14-15 | 1 LDK | 56.13㎡ | 2006年12月 |
この物件の募集は終了しています
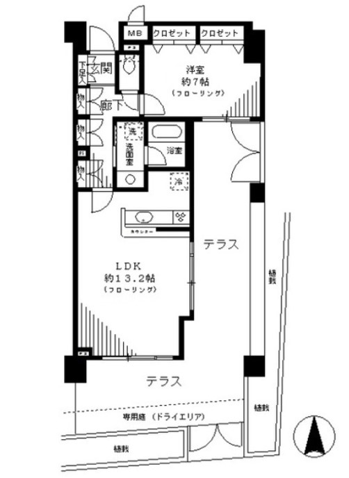
南向き、角部屋、二面採光、専用庭のある1LDKはリビングの床暖房やグリル付きの3口ガスカウンターキッチン、追い炊きや浴室乾燥機付きのお風呂、シャンプードレッサー、エアコン2基等の設備が充実してます。
物件写真・間取り
物件概要
| 物件名 | ダイナシティ城北中央公園 |
|---|
| 交通機関 | 東武東上線・上板橋駅 徒歩 11分 有楽町線・氷川台駅 徒歩 16分 副都心線・氷川台駅 徒歩 16分 |
|---|
| 間取り詳細 | LDK:13.2畳 洋室:7畳 |
|---|
| 建物構造 | RC |
|---|
| 所在階 / 階数 | 1階/3階建 |
|---|
| 主要採光面 | 南側 |
|---|
| 契約期間 | 2年 |
|---|
| 引渡 | 即入居 |
|---|
| 現況 | 空 |
|---|
| 設備・条件 | 分譲賃貸/エレベーター/24時間ゴミ出し可/宅配ボックス/敷地内ごみ置き場/駐輪場/南向き/角住戸/2面採光/南面リビング/専用庭/オートロック/防犯カメラ/LDK12畳以上/システムキッチン/対面式キッチン/ガスレンジ付/3口以上コンロ/グリル付/都市ガス/バストイレ別/オートバス/追焚機能浴室/浴室乾燥機/温水洗浄便座/洗面所独立/シャワー付洗面台/24時間換気システム/床暖房/テラス/フローリング/全居室フローリング/室内洗濯置/クロゼット/シューズボックス/CATV/光ファイバー/TVインターホン/即入居可/保証人不要/エアコン/エアコン2台/エアコン全室/通風良好 |
|---|
| 備考 | 分譲賃貸マンション情報が豊富なリガールで楽しいお部屋探しを! |
|---|
| 取引態様 | 媒介 |
|---|
| 情報登録日 | 2022年05月13日 |
|---|
| 情報更新日 | 2022年05月13日 |
|---|




















