- HOME
- マンションギャラリー一覧
- レヴィーガ大山
レヴィーガ大山
【 マンション 】洗髪洗面化粧台やシステムキッチン等の設備に優れた角部屋
| 最寄駅 | 所在地 | 間取り | 面積 | 築年月 |
|---|---|---|---|---|
東武東上線・大山駅 徒歩 7分 | 東京都板橋区中丸町59-5 | 1 LDK | 40.60㎡ | 2008年02月 |
この物件の募集は終了しています
角部屋、二面採光の1LDKは洗髪洗面化粧台やグリル付き3口システムキッチン、浴室乾燥機、エアコン等の設備が充実。駐輪場や宅配ボックス、敷地内ゴミ置場、モニター付オートロック等の共用設備が整う分譲賃貸マンション
物件写真・間取り
物件概要
| 物件名 | レヴィーガ大山 |
|---|
| 交通機関 | 東武東上線・大山駅 徒歩 7分 有楽町線・要町駅 徒歩 18分 三田線・板橋区役所前駅 徒歩 20分 |
|---|
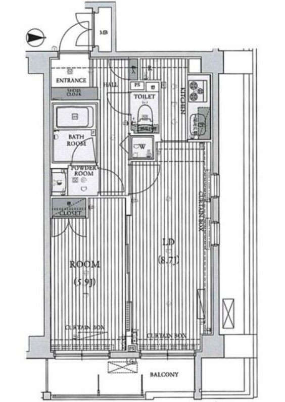
| 間取り詳細 | LD:8.7畳 洋室:5.9畳 |
|---|
| 建物構造 | RC |
|---|
| 所在階 / 階数 | 3階/5階建 |
|---|
| 主要採光面 | 東側 |
|---|
| 契約期間 | 2年 |
|---|
| 引渡 | 相談 |
|---|
| 現況 | 居住中 |
|---|
| 設備・条件 | 分譲賃貸/エレベーター/24時間ゴミ出し可/宅配ボックス/敷地内ごみ置き場/駐輪場/角住戸/2面採光/オートロック/防犯カメラ/システムキッチン/ガスレンジ付/3口以上コンロ/グリル付/都市ガス/バストイレ別/浴室乾燥機/洗面所独立/シャワー付洗面台/24時間換気システム/バルコニー/フローリング/全居室フローリング/室内洗濯置/クロゼット/シューズボックス/BS・CS/CATV/光ファイバー/TVインターホン/保証人不要/エアコン/通風良好 |
|---|
| 備考 | 分譲賃貸マンションをお探しの方はリガール株式会社にお任せください! |
|---|
| 取引態様 | 媒介 |
|---|
| 情報登録日 | 2022年04月28日 |
|---|
| 情報更新日 | 2022年04月28日 |
|---|























