- HOME
- マンションギャラリー一覧
- 伊藤ビル
伊藤ビル
【 マンション 】3口システムキッチンや三面鏡付洗髪洗面化粧台等の設備が充実
| 最寄駅 | 所在地 | 間取り | 面積 | 築年月 |
|---|---|---|---|---|
有楽町線・東池袋駅 徒歩 6分 | 東京都豊島区南池袋2-19-1 | 1 LDK | 39㎡ | 1980年11月 |
この物件の募集は終了しています
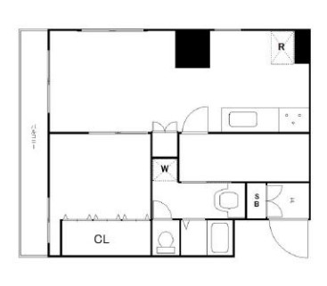
最上階、角部屋、二面採光の1LDKはグリル付きの3口システムキッチンや三面鏡付洗髪洗面化粧台、エアコン、モニター付インターホン等の設備が充実。ゴミ置き場やエレベーター等の共用部に優れ、事務所利用も可能
物件写真・間取り
物件概要
| 物件名 | 伊藤ビル |
|---|
| 交通機関 | 有楽町線・東池袋駅 徒歩 6分 山手線・池袋駅 徒歩 9分 副都心線・雑司が谷駅 徒歩 9分 |
|---|
| 建物構造 | RC |
|---|
| 所在階 / 階数 | 6階/6階建 |
|---|
| 契約期間 | 2年 |
|---|
| 引渡 | 即入居 |
|---|
| 現況 | 空 |
|---|
| 設備・条件 | 最上階/エレベーター/敷地内ごみ置き場/角住戸/2面採光/システムキッチン/ガスレンジ付/3口以上コンロ/グリル付/都市ガス/バストイレ別/洗面所独立/三面鏡付洗面化粧台/シャワー付洗面台/バルコニー/フローリング/全居室フローリング/室内洗濯置/クロゼット/シューズボックス/TVインターホン/内装リフォーム済/事務所相談/保証人不要/エアコン/通風良好 |
|---|
| 備考 | リノベーション賃貸物件情報が豊富なリガール株式会社 |
|---|
| 取引態様 | 媒介 |
|---|
| 情報登録日 | 2022年04月24日 |
|---|
| 情報更新日 | 2022年04月24日 |
|---|











