- HOME
- マンションギャラリー一覧
- クレヴィスタ西巣鴨
クレヴィスタ西巣鴨
【 マンション 】インターネット利用料無料、カウンターキッチンなどの設備が充実
| 最寄駅 | 所在地 | 間取り | 面積 | 築年月 |
|---|---|---|---|---|
都営三田線・西巣鴨駅 徒歩 8分 | 東京都北区滝野川2-16-4 | 3 LDK | 65.61㎡ | 2018年04月 |
この物件の募集は終了しています
【敷金、礼金不要】二面バルコニーがある3LDKはインターネット利用料が無料。グリル付きの3口カウンターキッチンやシャンプードレッサー、浴室乾燥機、温水洗浄便座等の設備が充実。駐輪場が1台無料です。
物件写真・間取り
物件概要
| 物件名 | クレヴィスタ西巣鴨 |
|---|
| 交通機関 | 都営三田線・西巣鴨駅 徒歩 8分 南北線・王子駅 徒歩 11分 都電荒川線・滝野川一丁目駅 徒歩 5分 |
|---|
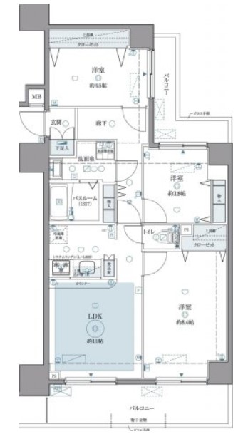
| 間取り詳細 | LDK:11畳 洋室:8.4畳、4.5畳、3.8畳 |
|---|
| 建物構造 | RC |
|---|
| 所在階 / 階数 | 3階/14階建 |
|---|
| 主要採光面 | 北西側 |
|---|
| 契約期間 | 2年 |
|---|
| 引渡 | 相談 |
|---|
| 現況 | 居住中 |
|---|
| 設備・条件 | デザイナーズ/外壁タイル張り/エレベーター/24時間ゴミ出し可/宅配ボックス/敷地内ごみ置き場/駐輪場/オートロック/防犯カメラ/システムキッチン/対面式キッチン/ガスレンジ付/3口以上コンロ/グリル付/都市ガス/バストイレ別/オートバス/追焚機能浴室/浴室乾燥機/温水洗浄便座/洗面所独立/シャワー付洗面台/24時間換気システム/バルコニー/南面バルコニー/2面バルコニー/フローリング/全居室フローリング/室内洗濯置/クロゼット/シューズボックス/BS・CS/ネット使用料不要/TVインターホン/保証人不要/エアコン |
|---|
| 備考 | 高級物件情報が豊富なリガール株式会社 |
|---|
| 取引態様 | 媒介 |
|---|
| 情報登録日 | 2022年03月29日 |
|---|
| 情報更新日 | 2022年03月29日 |
|---|




















