- HOME
- マンションギャラリー一覧
- フォレストビュー護国寺
フォレストビュー護国寺
【 マンション 】ペット可、楽器可、SOHO可の高級賃貸マンション
| 最寄駅 | 所在地 | 間取り | 面積 | 築年月 |
|---|---|---|---|---|
有楽町線・護国寺駅 徒歩 2分 | 東京都文京区大塚2-8-3 | 2 LDK | 48.48㎡ | 2014年01月 |
この物件の募集は終了しています
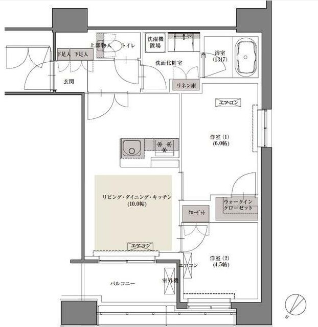
床暖房や3口カウンターキッチン、追い炊き、浴室乾燥機、三面鏡付洗髪洗面化粧台、温水洗浄便座等の設備が充実した2LDKはウォークインクローゼットがあり収納豊富。バイク置場や宅配ボックス等の共用設備も充実
物件写真・間取り
物件概要
| 物件名 | フォレストビュー護国寺 |
|---|
| 交通機関 | 有楽町線・護国寺駅 徒歩 2分 丸ノ内線・新大塚駅 徒歩 10分 丸ノ内線・茗荷谷駅 徒歩 14分 |
|---|
| 間取り詳細 | LDK:10畳 洋室:6畳、4.5畳 |
|---|
| 建物構造 | RC |
|---|
| 所在階 / 階数 | 8階/10階建 |
|---|
| 主要採光面 | 北西側 |
|---|
| 契約期間 | 2年 |
|---|
| 引渡 | 相談 |
|---|
| 現況 | 居住中 |
|---|
| 設備・条件 | エレベーター/24時間ゴミ出し可/宅配ボックス/敷地内ごみ置き場/駐輪場/バイク置場/全室南向き/角住戸/2面採光/オートロック/ダブルロックキー/ディンプルキー/防犯カメラ/全居室洋室/システムキッチン/対面式キッチン/ガスレンジ付/3口以上コンロ/グリル付/都市ガス/バストイレ別/脱衣所/オートバス/追焚機能浴室/浴室乾燥機/温水洗浄便座/洗面所独立/洗面所にドア/洗面化粧台/三面鏡付洗面化粧台/シャワー付洗面台/24時間換気システム/床暖房/バルコニー/フローリング/全居室フローリング/室内洗濯置/クロゼット/ウォークインクロゼット/シューズボックス/BS/光ファイバー/TVインターホン/ペット相談/楽器相談/敷金1ヶ月/保証人不要/エアコン/通風良好 |
|---|
| 備考 | ペット可情報が豊富なリガール株式会社 |
|---|
| 取引態様 | 媒介 |
|---|
| 情報登録日 | 2022年03月15日 |
|---|
| 情報更新日 | 2022年03月15日 |
|---|












