- HOME
- マンションギャラリー一覧
- ラコント早稲田
ラコント早稲田
【 マンション 】インターネット利用料無料、床暖房や追い炊き等の設備が充実
| 最寄駅 | 所在地 | 間取り | 面積 | 築年月 |
|---|---|---|---|---|
東西線・早稲田駅 徒歩 2分 | 東京都新宿区早稲田鶴巻町512-8 | 1 LDK | 37㎡ | 2018年06月 |
この物件の募集は終了しています
南東向きの1LDKはインターネット利用料が無料。リビングの床暖房やグリル付きの3口システムキッチン、追い炊き、浴室乾燥機、三面鏡付独立洗面台、手洗い付きの温水洗浄便座等の設備に優れた分譲マンション
物件写真・間取り
物件概要
| 物件名 | ラコント早稲田 |
|---|
| 交通機関 | 東西線・早稲田駅 徒歩 2分 大江戸線・牛込柳町駅 徒歩 13分 副都心線・西早稲田駅 徒歩 17分 |
|---|
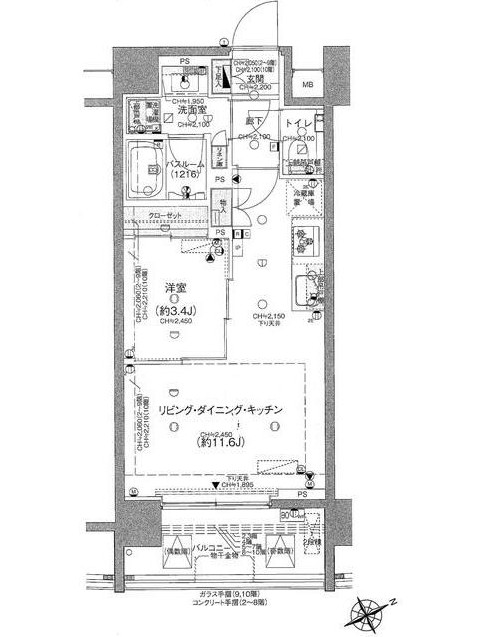
| 間取り詳細 | LDK:11.6畳 洋室:3.4畳 |
|---|
| 建物構造 | RC |
|---|
| 所在階 / 階数 | 4階/10階建 |
|---|
| 主要採光面 | 南東側 |
|---|
| 契約期間 | 2年 |
|---|
| 引渡 | 即入居 |
|---|
| 現況 | 空 |
|---|
| 設備・条件 | 分譲賃貸/エレベーター/24時間ゴミ出し可/宅配ボックス/敷地内ごみ置き場/駐輪場/東南向き/オートロック/ダブルロックキー/ディンプルキー/防犯カメラ/システムキッチン/ガスレンジ付/3口以上コンロ/グリル付/浄水器/都市ガス/バストイレ別/オートバス/追焚機能浴室/浴室乾燥機/温水洗浄便座/洗面所独立/三面鏡付洗面化粧台/24時間換気システム/床暖房/バルコニー/南面バルコニー/フローリング/全居室フローリング/室内洗濯置/クロゼット/シューズボックス/BS・CS/ネット使用料不要/TVインターホン/即入居可/保証人不要/エアコン |
|---|
| 備考 | 分譲賃貸マンション情報が豊富なリガール株式会社 |
|---|
| 取引態様 | 媒介 |
|---|
| 情報登録日 | 2022年03月07日 |
|---|
| 情報更新日 | 2022年03月07日 |
|---|




















