- HOME
- マンションギャラリー一覧
- ユーレジデンス目白
ユーレジデンス目白
【 マンション 】L字型カウンターキッチンや三面鏡付独立洗面台等の設備が充実
| 最寄駅 | 所在地 | 間取り | 面積 | 築年月 |
|---|---|---|---|---|
副都心線・雑司が谷駅 徒歩 9分 | 東京都豊島区高田3-37-12 | 2 LDK | 96.91㎡ | 1991年03月 |
この物件の募集は終了しています
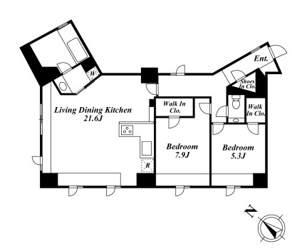
南西向きの角部屋は無料のトランクルームやシューズインクローゼット、ウォークインクローゼットが2か所と収納が豊富。L字型のIH3口カウンターキッチンや三面鏡付独立洗面台、手洗い付きのトイレ等設備が充実。
物件写真・間取り
物件概要
| 物件名 | ユーレジデンス目白 |
|---|
| 交通機関 | 副都心線・雑司が谷駅 徒歩 9分 山手線・目白駅 徒歩 11分 東西線・高田馬場駅 徒歩 11分 |
|---|
| 間取り詳細 | LDK:21.6畳 洋室:7.9畳、5.3畳 |
|---|
| 建物構造 | RC |
|---|
| 所在階 / 階数 | 2階/6階建 |
|---|
| 主要採光面 | 南西側 |
|---|
| 契約期間 | 2年 |
|---|
| 引渡 | 5月上旬 |
|---|
| 現況 | 居住中 |
|---|
| 設備・条件 | エレベーター/24時間ゴミ出し可/宅配ボックス/敷地内ごみ置き場/シャッター車庫/駐輪場/南西向き/角住戸/2面採光/オートロック/ディンプルキー/防犯カメラ/LDK20畳以上/システムキッチン/対面式キッチン/L字型キッチン/3口以上コンロ/IHクッキングヒーター/グリル付/バストイレ別/浴室乾燥機/温水洗浄便座/洗面所独立/三面鏡付洗面化粧台/24時間換気システム/フローリング/全居室フローリング/室内洗濯置/クロゼット/ウォークインクロゼット/ウォークインクロゼット2/シューズボックス/シューズWIC/トランクルーム/BS・CS/CATV/TVインターホン/保証人不要/エアコン/エアコン3台/エアコン全室/通風良好 |
|---|
| 備考 | リノベーションマンション情報が豊富なリガール |
|---|
| 取引態様 | 媒介 |
|---|
| 情報登録日 | 2022年02月24日 |
|---|
| 情報更新日 | 2022年02月24日 |
|---|

























