- HOME
- マンションギャラリー一覧
- グローリオタワー巣鴨
グローリオタワー巣鴨
【 マンション 】西巣鴨駅徒歩4分にそびえたつ29階建て分譲タワーマンション
| 最寄駅 | 所在地 | 間取り | 面積 | 築年月 |
|---|---|---|---|---|
山手線・巣鴨駅 徒歩 14分 | 東京都豊島区巣鴨4-44-1 | 1 LDK | 46.32㎡ | 2006年10月 |
この物件の募集は終了しています
29階建ての分譲タワーマンション。駐車場が敷地内にあり、西巣鴨駅徒歩4分の交通面に優れてます。南西向きの室内は3口システムキッチンや追い炊きオートバス、浴室乾燥機、独立洗面台等の設備が充実してます
物件写真・間取り
物件概要
| 物件名 | グローリオタワー巣鴨 |
|---|
| 交通機関 | 山手線・巣鴨駅 徒歩 14分 三田線・西巣鴨駅 徒歩 4分 荒川線・新庚申塚駅 徒歩 1分 |
|---|
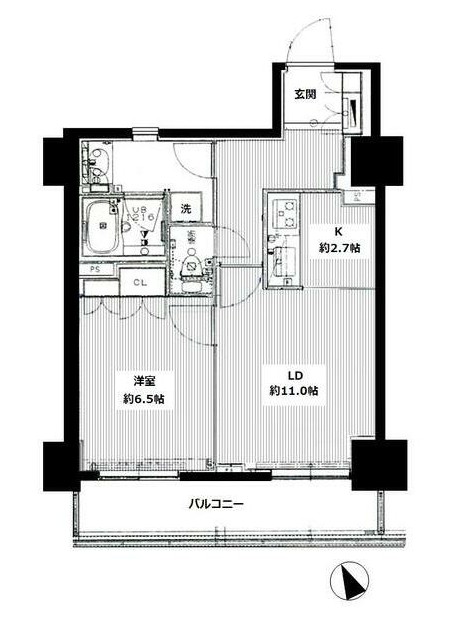
| 間取り詳細 | LDK:13.7畳 洋室:6.5畳 |
|---|
| 建物構造 | RC |
|---|
| 所在階 / 階数 | 2階/29階建 |
|---|
| 主要採光面 | 南西側 |
|---|
| 契約期間 | 2年 |
|---|
| 引渡 | 即入居 |
|---|
| 現況 | 空 |
|---|
| 設備・条件 | タワー型マンション/分譲賃貸/エレベーター/エレベーター2基/24時間ゴミ出し可/宅配ボックス/敷地内ごみ置き場/シャッター車庫/駐輪場/南西向き/オートロック/ダブルロックキー/ディンプルキー/防犯カメラ/セキュリティ会社加入済/全居室6畳以上/システムキッチン/ガスレンジ付/3口以上コンロ/グリル付/都市ガス/バストイレ別/オートバス/追焚機能浴室/浴室乾燥機/温水洗浄便座/洗面所独立/24時間換気システム/バルコニー/南面バルコニー/フローリング/全居室フローリング/室内洗濯置/クロゼット/シューズボックス/CATV/光ファイバー/TVインターホン/保証人不要/エアコン |
|---|
| 備考 | タワーマンション情報が豊富なリガール株式会社 |
|---|
| 取引態様 | 媒介 |
|---|
| 情報登録日 | 2022年02月21日 |
|---|
| 情報更新日 | 2022年02月21日 |
|---|












