- HOME
- マンションギャラリー一覧
- パレステージ文京江戸川橋
パレステージ文京江戸川橋
【 マンション 】独立洗面台やシューズインクローゼット等の設備に優れた分譲賃貸マンション
| 最寄駅 | 所在地 | 間取り | 面積 | 築年月 |
|---|---|---|---|---|
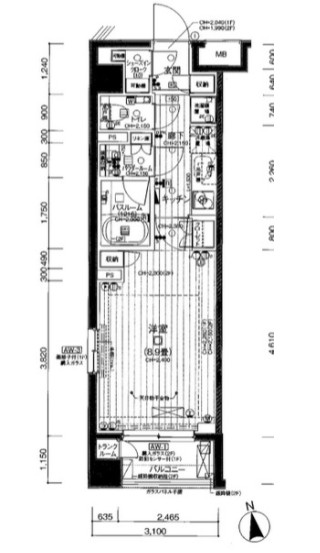
有楽町線・江戸川橋駅 徒歩 5分 | 東京都文京区水道2-4-27 | 1 K | 30.28㎡ | 2017年03月 |
この物件の募集は終了しています
南向き、角部屋、二面採光の風通しに優れた室内はシューズインクローゼットがあり収納豊富。IHシステムキッチンや浴室乾燥機、三面鏡付独立洗面化粧台、手洗い付きタンクレストイレ等の設備が充実してます。
物件写真・間取り
物件概要
| 物件名 | パレステージ文京江戸川橋 |
|---|
| 交通機関 | 有楽町線・江戸川橋駅 徒歩 5分 東西線・神楽坂駅 徒歩 9分 丸の内線・茗荷谷駅 徒歩 11分 |
|---|
| 間取り詳細 | 8.9畳 |
|---|
| 建物構造 | RC |
|---|
| 所在階 / 階数 | 2階/6階建 |
|---|
| 主要採光面 | 南側 |
|---|
| 契約期間 | 2年 |
|---|
| 引渡 | 1月中旬 |
|---|
| 現況 | 居住中 |
|---|
| 設備・条件 | 耐震構造/二重床構造/二重天井構造/外壁タイル張り/分譲賃貸/エレベーター/24時間ゴミ出し可/宅配ボックス/敷地内ごみ置き場/駐輪場/バイク置場/南向き/角住戸/2面採光/オートロック/ダブルロックキー/ディンプルキー/防犯カメラ/システムキッチン/2口コンロ/IHクッキングヒーター/都市ガス/バストイレ別/オートバス/追焚機能浴室/浴室乾燥機/温水洗浄便座/洗面所独立/洗面化粧台/三面鏡付洗面化粧台/24時間換気システム/エコジョーズ/バルコニー/南面バルコニー/フローリング/室内洗濯置/クロゼット/シューズボックス/シューズWIC/BS・CS/BS/CS/CATV/TVインターホン/保証人不要/エアコン/通風良好 |
|---|
| 備考 | 高級分譲賃貸情報が豊富なリガール株式会社 |
|---|
| 取引態様 | 媒介 |
|---|
| 情報登録日 | 2021年12月05日 |
|---|
| 情報更新日 | 2021年12月05日 |
|---|







