- HOME
- マンションギャラリー一覧
- コンシェリア王子飛鳥山
コンシェリア王子飛鳥山
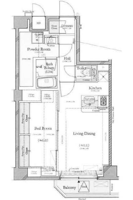
【 マンション 】ペット可、最上階の1LDKは追い炊きや独立洗面台等の充実設備
| 最寄駅 | 所在地 | 間取り | 面積 | 築年月 |
|---|---|---|---|---|
京浜東北線・王子駅 徒歩 9分 | 東京都北区西ヶ原2-35-4 | 1 LDK | 41.78㎡ | 2015年10月 |
この物件の募集は終了しています
最上階、西向きの1LDKはペットの飼育が可能。2口ガスのカウンターキッチンや追い炊き、浴室乾燥機付きのお風呂、独立洗面台、温水洗浄便座、エアコン全室等の室内設備や宅配ボックス等の共用部も充実の分譲賃貸
物件写真・間取り
物件概要
| 物件名 | コンシェリア王子飛鳥山 |
|---|
| 交通機関 | 京浜東北線・王子駅 徒歩 9分 南北線・西ヶ原駅 徒歩 3分 荒川線・飛鳥山駅 徒歩 7分 |
|---|
| 建物構造 | RC |
|---|
| 所在階 / 階数 | 7階/7階建 |
|---|
| 主要採光面 | 西側 |
|---|
| 契約期間 | 2年 |
|---|
| 引渡 | 12月下旬 |
|---|
| 現況 | 居住中 |
|---|
| 設備・条件 | デザイナーズ/外壁タイル張り/分譲賃貸/高層階/最上階/エレベーター/24時間ゴミ出し可/宅配ボックス/敷地内ごみ置き場/駐輪場/オートロック/防犯カメラ/システムキッチン/対面式キッチン/ガスレンジ付/2口コンロ/都市ガス/バストイレ別/オートバス/追焚機能浴室/浴室乾燥機/温水洗浄便座/洗面所独立/洗面化粧台/24時間換気システム/バルコニー/フローリング/全居室フローリング/室内洗濯置/クロゼット/シューズボックス/光ファイバー/TVインターホン/ペット相談/保証人不要/エアコン/エアコン2台/エアコン全室 |
|---|
| 備考 | ペット飼育時敷金1ヶ月追加・償却 |
|---|
| 取引態様 | 媒介 |
|---|
| 情報登録日 | 2021年11月29日 |
|---|
| 情報更新日 | 2021年11月29日 |
|---|





























