- HOME
- マンションギャラリー一覧
- セジョリ駒込
セジョリ駒込
【 マンション 】グリル付3口システムキッチンや独立洗面化粧台等の設備が充実
| 最寄駅 | 所在地 | 間取り | 面積 | 築年月 |
|---|---|---|---|---|
山手線・駒込駅 徒歩 7分 | 東京都文京区本駒込5-70-10 | 1 R | 33.46㎡ | 2013年05月 |
この物件の募集は終了しています
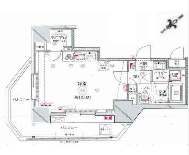
L字型バルコニーが広がる二面採光の角部屋はウォークインクローゼットがあり収納豊富。グリル付きの3口システムキッチンや独立洗面化粧台、浴室乾燥機、温水洗浄便座、テレビモニターフォン等の設備が充実してます
物件写真・間取り
物件概要
| 物件名 | セジョリ駒込 |
|---|
| 交通機関 | 山手線・駒込駅 徒歩 7分 三田線・千石駅 徒歩 12分 南北線・本駒込駅 徒歩 13分 |
|---|
| 間取り詳細 | 12.4畳 |
|---|
| 建物構造 | RC |
|---|
| 所在階 / 階数 | 2階/12階建 |
|---|
| 主要採光面 | 南東側 |
|---|
| 契約期間 | 2年 |
|---|
| 引渡 | 即入居 |
|---|
| 現況 | 空 |
|---|
| 設備・条件 | 分譲賃貸/エレベーター/24時間ゴミ出し可/宅配ボックス/敷地内ごみ置き場/駐輪場/バイク置場/東南向き/角住戸/2面採光/オートロック/ダブルロックキー/防犯カメラ/システムキッチン/ガスレンジ付/3口以上コンロ/グリル付/都市ガス/バストイレ別/浴室乾燥機/温水洗浄便座/洗面所独立/24時間換気システム/バルコニー/L字型バルコニー/フローリング/室内洗濯置/クロゼット/ウォークインクロゼット/シューズボックス/BS・CS/光ファイバー/TVインターホン/保証人不要/エアコン/通風良好 |
|---|
| 備考 | 分譲賃貸マンション情報が豊富なリガール株式会社 |
|---|
| 取引態様 | 媒介 |
|---|
| 情報登録日 | 2021年11月15日 |
|---|
| 情報更新日 | 2021年11月15日 |
|---|




























