- HOME
- マンションギャラリー一覧
- グランエッグス茗荷谷
グランエッグス茗荷谷
【 アパート 】敷金、礼金、仲介手数料、インターネット利用料が無料の1DK
| 最寄駅 | 所在地 | 間取り | 面積 | 築年月 |
|---|---|---|---|---|
丸の内線・茗荷谷駅 徒歩 5分 | 東京都文京区小日向1-22-8 | 1 DK | 37.83㎡ | 2006年09月 |
この物件の募集は終了しています
【仲介手数料、敷金、礼金不要】インターネット利用料が無料のメゾネットタイプのデザイナーズアパート。2口ガスのシステムキッチンや追い炊き、浴室乾燥機、独立洗面台、温水洗浄便座等の室内設備が充実してます。
物件写真・間取り
物件概要
| 物件名 | グランエッグス茗荷谷 |
|---|
| 交通機関 | 丸の内線・茗荷谷駅 徒歩 5分 有楽町線・江戸川橋駅 徒歩 10分 東西線・神楽坂駅 徒歩 18分 |
|---|
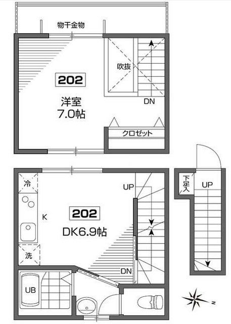
| 間取り詳細 | DK:6.9畳 洋室:7畳 |
|---|
| 建物構造 | 木造 |
|---|
| 所在階 / 階数 | 2-3階/3階建 |
|---|
| 主要採光面 | 西側 |
|---|
| 契約期間 | 2年 |
|---|
| 引渡 | 12月中旬 |
|---|
| 現況 | 居住中 |
|---|
| 設備・条件 | デザイナーズ/外壁タイル張り/最上階/メゾネット/システムキッチン/ガスレンジ付/2口コンロ/都市ガス/バストイレ別/追焚機能浴室/温水洗浄便座/洗面所独立/24時間換気システム/バルコニー/フローリング/全居室フローリング/室内洗濯置/クロゼット/シューズボックス/BS・CS/ネット使用料不要/敷金・礼金不要/仲介手数料不要/保証人不要/フリーレント/エアコン |
|---|
| 備考 | デザイナーズ物件をお探しの方はリガールにお任せください! |
|---|
| 取引態様 | 媒介 |
|---|
| 情報登録日 | 2021年11月07日 |
|---|
| 情報更新日 | 2021年11月07日 |
|---|















