- HOME
- マンションギャラリー一覧
- トレ・クェルチェ
トレ・クェルチェ
【 マンション 】インターネット利用料無料、追い炊きや浴室乾燥機等の設備が充実
| 最寄駅 | 所在地 | 間取り | 面積 | 築年月 |
|---|---|---|---|---|
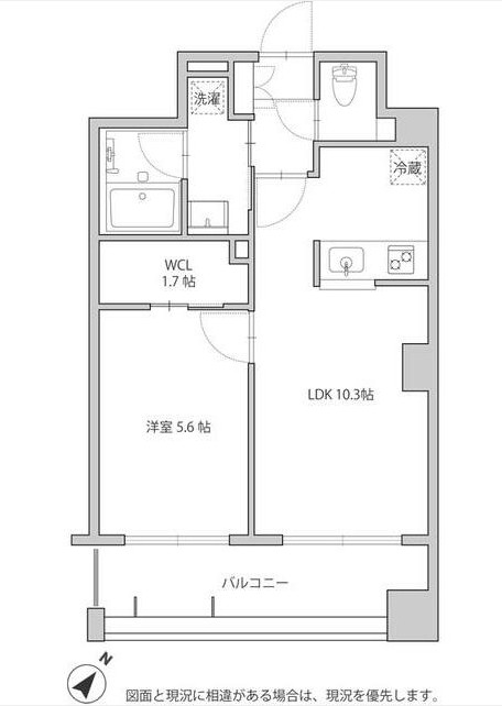
山手線・大塚駅 徒歩 4分 | 東京都豊島区北大塚1-33 | 1 LDK | 40.16㎡ | 2016年06月 |
この物件の募集は終了しています
南東向き、インターネット利用料が無料の1LDKは追い炊きや浴室乾燥機、グリル付カウンターキッチン、独立洗面化粧台等の設備に優れ、ウォークインクローゼットがあり収納豊富。宅配ボックス等の共用部も豊富です
物件写真・間取り
物件概要
| 物件名 | トレ・クェルチェ |
|---|
| 交通機関 | 山手線・大塚駅 徒歩 4分 丸の内線・新大塚駅 徒歩 12分 荒川線・大塚駅前駅 徒歩 4分 |
|---|
| 間取り詳細 | LDK:10.3畳 洋室:5.6畳 |
|---|
| 建物構造 | SRC |
|---|
| 所在階 / 階数 | 5階/7階建 |
|---|
| 主要採光面 | 南東側 |
|---|
| 契約期間 | 2年 |
|---|
| 引渡 | 即入居 |
|---|
| 現況 | 空 |
|---|
| 設備・条件 | エレベーター/宅配ボックス/敷地内ごみ置き場/駐輪場/バイク置場/東南向き/南面リビング/オートロック/ディンプルキー/防犯カメラ/システムキッチン/対面式キッチン/ガスレンジ付/2口コンロ/グリル付/都市ガス/バストイレ別/オートバス/追焚機能浴室/浴室乾燥機/浴室に窓/洗面所独立/シャワー付洗面台/24時間換気システム/バルコニー/南面バルコニー/フローリング/全居室フローリング/室内洗濯置/クロゼット/ウォークインクロゼット/シューズボックス/BS・CS/ネット使用料不要/TVインターホン/即入居可/保証人不要/エアコン |
|---|
| 備考 | バイク置場:3000円/月 |
|---|
| 取引態様 | 媒介 |
|---|
| 情報登録日 | 2021年10月22日 |
|---|
| 情報更新日 | 2021年10月22日 |
|---|

















