- HOME
- マンションギャラリー一覧
- イトーピア目白カレン
イトーピア目白カレン
【 マンション 】ミストサウナや床暖房等の高級設備が整う目白駅徒歩2分の分譲マンション
| 最寄駅 | 所在地 | 間取り | 面積 | 築年月 |
|---|---|---|---|---|
山手線・目白駅 徒歩 2分 | 東京都豊島区目白3-13-4 | 1 LDK | 45.59㎡ | 2007年07月 |
この物件の募集は終了しています
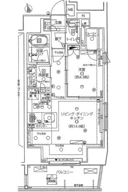
南向き、二面採光の角部屋はリビングの床暖房や浄水器付3口カウンターキッチン、ミストサウナや追い炊き、浴室乾燥機付きのお風呂、独立洗面化粧台、ウォークインクローゼット等の設備に優れ、ペットの飼育が可能。
物件写真・間取り
物件概要
| 物件名 | イトーピア目白カレン |
|---|
| 交通機関 | 山手線・目白駅 徒歩 2分 副都心線・雑司が谷駅 徒歩 11分 山手線・池袋駅 徒歩 13分 |
|---|
| 間取り詳細 | LDK:14.6畳 洋室:4.5畳 |
|---|
| 建物構造 | RC |
|---|
| 所在階 / 階数 | 5階/14階建 |
|---|
| 主要採光面 | 南側 |
|---|
| 契約期間 | 2年 |
|---|
| 引渡 | 12月上旬 |
|---|
| 現況 | 居住中 |
|---|
| 設備・条件 | 分譲賃貸/エレベーター/24時間ゴミ出し可/宅配ボックス/敷地内ごみ置き場/駐輪場/南向き/角住戸/2面採光/南面リビング/オートロック/ディンプルキー/防犯カメラ/LDK12畳以上/システムキッチン/対面式キッチン/ガスレンジ付/3口以上コンロ/グリル付/浄水器/都市ガス/バストイレ別/オートバス/追焚機能浴室/浴室乾燥機/ミストサウナ/温水洗浄便座/洗面所独立/三面鏡付洗面化粧台/24時間換気システム/床暖房/バルコニー/南面バルコニー/フローリング/全居室フローリング/室内洗濯置/クロゼット/ウォークインクロゼット/シューズボックス/TVインターホン/ペット相談/保証人不要/エアコン/洗濯機/通風良好 |
|---|
| 備考 | 分譲賃貸マンション情報が豊富なリガール |
|---|
| 取引態様 | 媒介 |
|---|
| 情報登録日 | 2021年10月03日 |
|---|
| 情報更新日 | 2021年10月03日 |
|---|

































