- HOME
- マンションギャラリー一覧
- 日神デュオステージ田端
日神デュオステージ田端
【 マンション 】三面鏡付洗髪洗面化粧台や追い炊き、システムキッチン等の設備
| 最寄駅 | 所在地 | 間取り | 面積 | 築年月 |
|---|---|---|---|---|
山手線・田端駅 徒歩 3分 | 東京都北区田端1-19-21 | 1 DK | 30.24㎡ | 2007年07月 |
この物件の募集は終了しています
専用庭がある南向きの室内は追い炊きや浴室乾燥機付きのお風呂に三面鏡付洗髪洗面化粧台、IHシステムキッチン、温水洗浄便座と設備が充実。宅配ボックスや敷地内ゴミ置場等の共用部も豊富な分譲賃貸マンション
物件写真・間取り
物件概要
| 物件名 | 日神デュオステージ田端 |
|---|
| 交通機関 | 山手線・田端駅 徒歩 3分 千代田線・西日暮里駅 徒歩 11分 南北線・駒込駅 徒歩 17分 |
|---|
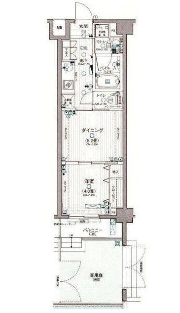
| 間取り詳細 | D:5.2畳 洋室:4畳 |
|---|
| 建物構造 | RC |
|---|
| 所在階 / 階数 | 1階/4階建 |
|---|
| 主要採光面 | 南側 |
|---|
| 契約期間 | 2年 |
|---|
| 引渡 | 9月中旬 |
|---|
| 現況 | 居住中 |
|---|
| 設備・条件 | 分譲賃貸/エレベーター/24時間ゴミ出し可/宅配ボックス/敷地内ごみ置き場/駐輪場/南向き/専用庭/オートロック/ダブルロックキー/ディンプルキー/防犯カメラ/システムキッチン/2口コンロ/IHクッキングヒーター/都市ガス/バストイレ別/オートバス/追焚機能浴室/浴室乾燥機/温水洗浄便座/洗面所独立/三面鏡付洗面化粧台/シャワー付洗面台/24時間換気システム/バルコニー/フローリング/全居室フローリング/室内洗濯置/クロゼット/シューズボックス/CS/光ファイバー/TVインターホン/ペット相談/保証人不要/エアコン |
|---|
| 備考 | ペット可物件をお探しの方はリガール株式会社にお任せください! |
|---|
| 取引態様 | 媒介 |
|---|
| 情報登録日 | 2021年08月04日 |
|---|
| 情報更新日 | 2021年08月04日 |
|---|

















