- HOME
- マンションギャラリー一覧
- ドゥーエ早稲田
ドゥーエ早稲田
【 マンション 】フィットネスジムがあり、ペット可、楽器可の分譲賃貸マンション
| 最寄駅 | 所在地 | 間取り | 面積 | 築年月 |
|---|---|---|---|---|
東西線・早稲田駅 徒歩 6分 | 東京都新宿区西早稲田2-6-1 | 2 LDK | 50.23㎡ | 2020年09月 |
この物件の募集は終了しています
リビングの床暖房やグリル付きの3口システムキッチン、追い炊き、浴室乾燥機、独立洗面化粧台、温水洗浄便座等の設備に優れた2LDK。小型犬、猫の飼育が2匹迄可能、インターネットも無料で利用可能です。
物件写真・間取り
物件概要
| 物件名 | ドゥーエ早稲田 |
|---|
| 交通機関 | 東西線・早稲田駅 徒歩 6分 副都心線・西早稲田駅 徒歩 8分 山手線・高田馬場駅 徒歩 17分 |
|---|
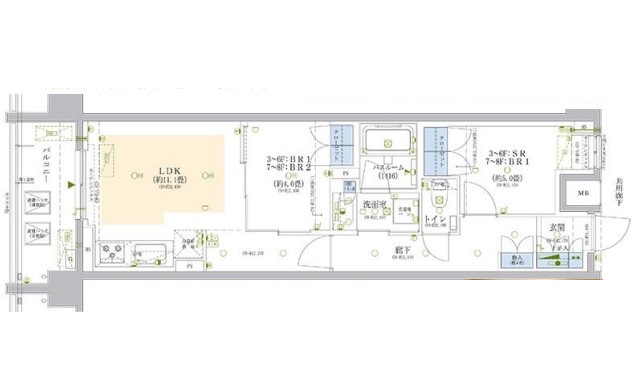
| 間取り詳細 | LDK:11.1畳 洋室:5畳、4畳 |
|---|
| 建物構造 | RC |
|---|
| 所在階 / 階数 | 7階/10階建 |
|---|
| 主要採光面 | 東側 |
|---|
| 契約期間 | 2年 |
|---|
| 引渡 | 8月下旬 |
|---|
| 現況 | 居住中 |
|---|
| 設備・条件 | 分譲賃貸/高層階/エレベーター/24時間ゴミ出し可/宅配ボックス/敷地内ごみ置き場/駐輪場/オートロック/ダブルロックキー/ディンプルキー/防犯カメラ/システムキッチン/ガスレンジ付/3口以上コンロ/グリル付/都市ガス/バストイレ別/オートバス/追焚機能浴室/浴室乾燥機/温水洗浄便座/洗面所独立/洗面化粧台/24時間換気システム/床暖房/バルコニー/フローリング/全居室フローリング/室内洗濯置/クロゼット/シューズボックス/納戸/ネット使用料不要/TVインターホン/ペット相談/楽器相談/保証人不要/エアコン/エアコン2台 |
|---|
| 備考 | フィットネスジム(24時間利用可、無料) 敷地内カーシェアリング |
|---|
| 取引態様 | 媒介 |
|---|
| 情報登録日 | 2021年07月26日 |
|---|
| 情報更新日 | 2021年07月26日 |
|---|









