- HOME
- マンションギャラリー一覧
- 高松3丁目戸建
高松3丁目戸建
【 一戸建て 】駐車場付戸建て。ペット飼育、楽器の演奏も相談可能です。
| 最寄駅 | 所在地 | 間取り | 面積 | 築年月 |
|---|---|---|---|---|
有楽町線・千川駅 徒歩 10分 | 東京都豊島区高松3-1-23 | 2 LDK | 64.24㎡ | 2017年08月 |
この物件の募集は終了しています
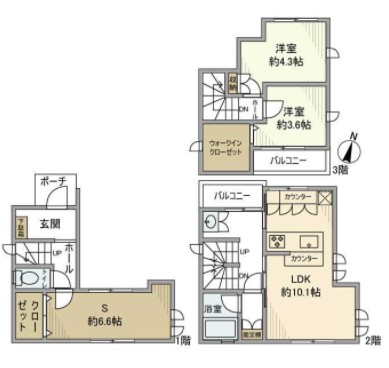
駐車場付き、6.6畳のサービスルームがある2SLDKの戸建てはペットの飼育、楽器の演奏が可能。食洗器やグリル、浄水器付きの3口カウンターキッチンや追い炊き、ウォークインクローゼット等の設備が充実。
物件写真・間取り
物件概要
| 物件名 | 高松3丁目戸建 |
|---|
| 交通機関 | 有楽町線・千川駅 徒歩 10分 副都心線・要町駅 徒歩 12分 東武東上線・大山駅 徒歩 18分 |
|---|
| 間取り詳細 | LDK:10.1畳 洋室:4.3畳、3.6畳 S:6.6畳 |
|---|
| 建物構造 | 木造 |
|---|
| 所在階 / 階数 | 3階建 |
|---|
| 主要採光面 | 南側 |
|---|
| 駐車場 | 付 |
|---|
| 駐車場料金 | 無料 |
|---|
| 契約期間 | 2年 |
|---|
| 引渡 | 即入居 |
|---|
| 現況 | 空 |
|---|
| 設備・条件 | 平面駐車場/駐輪場/駐車場1台無料/南向き/2面採光/全室2面採光/3面採光/南面リビング/2階リビング/システムキッチン/対面式キッチン/ガスレンジ付/3口以上コンロ/グリル付/食器洗乾燥機/浄水器/都市ガス/バストイレ別/オートバス/追焚機能浴室/浴室乾燥機/温水洗浄便座/洗面所独立/三面鏡付洗面化粧台/シャワー付洗面台/24時間換気システム/バルコニー/南面バルコニー/2面バルコニー/フローリング/全居室フローリング/室内洗濯置/クロゼット/ウォークインクロゼット/シューズボックス/TVインターホン/即入居可/ペット相談/楽器相談/保証人不要/エアコン/通風良好/陽当り良好 |
|---|
| 備考 | 賃貸戸建てをお探しの方はリガール株式会社にお任せください! |
|---|
| 取引態様 | 媒介 |
|---|
| 情報登録日 | 2021年06月22日 |
|---|
| 情報更新日 | 2021年06月22日 |
|---|














