- HOME
- マンションギャラリー一覧
- グランスイート神楽坂
グランスイート神楽坂
【 マンション 】床暖房や追い炊き、システムキッチン等の設備に優れた分譲賃貸マンション
| 最寄駅 | 所在地 | 間取り | 面積 | 築年月 |
|---|---|---|---|---|
東西線・神楽坂駅 徒歩 3分 | 東京都新宿区天神町4-1 | 1 LDK | 28.49㎡ | 2004年10月 |
この物件の募集は終了しています
角部屋の1LDKはリビングの床暖房やシステムキッチン、追い炊きや浴室乾燥機付きのお風呂、三面鏡付独立洗面化粧台、温水洗浄便座等の設備が充実。駐車場や駐輪場、宅配ボックス等の共用設備も整ってます。
物件写真・間取り
物件概要
| 物件名 | グランスイート神楽坂 |
|---|
| 交通機関 | 東西線・神楽坂駅 徒歩 3分 有楽町線・江戸川橋駅 徒歩 7分 大江戸線・牛込神楽坂駅 徒歩 10分 |
|---|
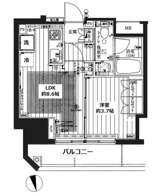
| 間取り詳細 | LDK:8.6畳 洋室:3.7畳 |
|---|
| 建物構造 | RC |
|---|
| 所在階 / 階数 | 5階/14階建 |
|---|
| 主要採光面 | 北側 |
|---|
| 契約期間 | 2年 |
|---|
| 引渡 | 7月上旬 |
|---|
| 現況 | 居住中 |
|---|
| 設備・条件 | 分譲賃貸/エレベーター/24時間ゴミ出し可/宅配ボックス/敷地内ごみ置き場/駐輪場/角住戸/オートロック/防犯カメラ/システムキッチン/ガスレンジ付/2口コンロ/都市ガス/バストイレ別/オートバス/追焚機能浴室/浴室乾燥機/温水洗浄便座/洗面所独立/洗面化粧台/三面鏡付洗面化粧台/シャワー付洗面台/24時間換気システム/床暖房/バルコニー/フローリング/全居室フローリング/室内洗濯置/クロゼット/シューズボックス/光ファイバー/TVインターホン/保証人不要/エアコン |
|---|
| 備考 | 分譲賃貸マンション情報が豊富なリガール |
|---|
| 取引態様 | 媒介 |
|---|
| 情報登録日 | 2021年06月01日 |
|---|
| 情報更新日 | 2021年06月01日 |
|---|




















