- HOME
- マンションギャラリー一覧
- ステージグランデ茗荷谷
ステージグランデ茗荷谷
【 マンション 】床暖房や3口カウンターキッチン等の設備に優れた分譲マンション
| 最寄駅 | 所在地 | 間取り | 面積 | 築年月 |
|---|---|---|---|---|
丸の内線・茗荷谷駅 徒歩 10分 | 東京都文京区大塚3-42-10 | 2 LDK | 65㎡ | 2007年01月 |
この物件の募集は終了しています
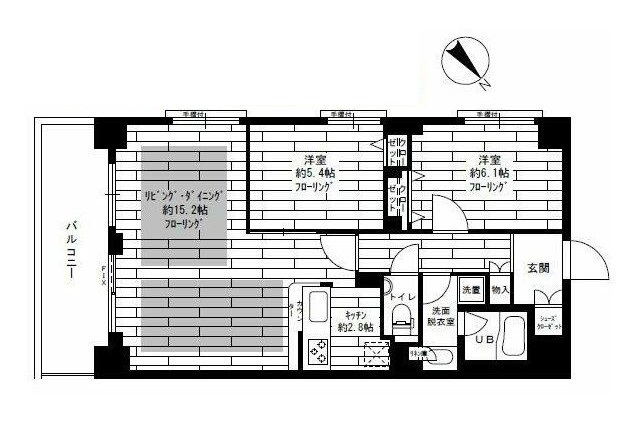
南東向き、角部屋、二面採光の風通しに優れた2LDKはリビングに床暖房が入り、グリル付きの3口カウンターキッチンや追い炊き、浴室乾燥機、独立洗面化粧台、温水洗浄便座、トイレに手洗い等の設備が充実してます
物件写真・間取り
物件概要
| 物件名 | ステージグランデ茗荷谷 |
|---|
| 交通機関 | 丸の内線・茗荷谷駅 徒歩 10分 三田線・千石駅 徒歩 12分 丸の内線・新大塚駅 徒歩 12分 |
|---|
| 間取り詳細 | LDK:18畳 洋室:6.1畳、5.4畳 |
|---|
| 建物構造 | RC |
|---|
| 所在階 / 階数 | 3階/10階建 |
|---|
| 主要採光面 | 南東側 |
|---|
| 契約期間 | 2年 |
|---|
| 引渡 | 即入居 |
|---|
| 現況 | 空 |
|---|
| 設備・条件 | 分譲賃貸/エレベーター/24時間ゴミ出し可/宅配ボックス/敷地内ごみ置き場/駐輪場/バイク置場/東南向き/角住戸/2面採光/南面リビング/オートロック/ダブルロックキー/ディンプルキー/防犯カメラ/LDK18畳以上/全居室洋室/システムキッチン/対面式キッチン/ガスレンジ付/3口以上コンロ/グリル付/オーブンレンジ/都市ガス/バストイレ別/オートバス/追焚機能浴室/浴室乾燥機/温水洗浄便座/洗面所独立/洗面化粧台/24時間換気システム/床暖房/バルコニー/南面バルコニー/フローリング/全居室フローリング/室内洗濯置/クロゼット/シューズボックス/BS・CS/BS/CS/CATV/光ファイバー/TVインターホン/保証人不要/エアコン/通風良好 |
|---|
| 備考 | 分譲賃貸マンション情報が豊富なリガール株式会社 |
|---|
| 取引態様 | 媒介 |
|---|
| 情報登録日 | 2021年05月21日 |
|---|
| 情報更新日 | 2021年05月21日 |
|---|
















