- HOME
- マンションギャラリー一覧
- デュオステージ巣鴨
デュオステージ巣鴨
【 マンション 】食洗器付3口システムキッチンや追い炊き等の設備が充実
| 最寄駅 | 所在地 | 間取り | 面積 | 築年月 |
|---|---|---|---|---|
三田線・西巣鴨駅 徒歩 6分 | 東京都豊島区巣鴨4-42-3 | 1 LDK | 41.27㎡ | 2016年08月 |
この物件の募集は終了しています
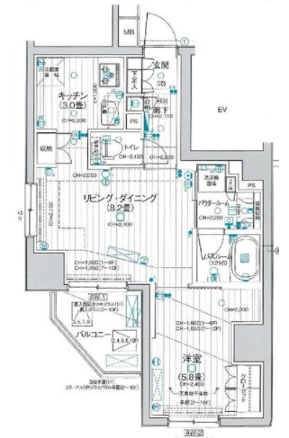
最上階、角部屋、二面採光の風通しに優れた1LDKは食洗器やグリル付きの3口システムキッチンや追い炊き、浴室乾燥機、三面鏡付独立洗面化粧台等の設備に優れ、ALSOKセキュリティが入っており女性も安心。
物件写真・間取り
物件概要
| 物件名 | デュオステージ巣鴨 |
|---|
| 交通機関 | 三田線・西巣鴨駅 徒歩 6分 山手線・大塚駅 徒歩 13分 山手線・巣鴨駅 徒歩 15分 |
|---|
| 間取り詳細 | LDK:11.2畳 洋室:5.8畳 |
|---|
| 建物構造 | RC |
|---|
| 所在階 / 階数 | 10階/10階建 |
|---|
| 主要採光面 | 北側 |
|---|
| 契約期間 | 2年 |
|---|
| 引渡 | 即入居 |
|---|
| 現況 | 空 |
|---|
| 設備・条件 | 分譲賃貸/高層階/最上階/エレベーター/24時間ゴミ出し可/宅配ボックス/敷地内ごみ置き場/築3年以内/駐輪場/角住戸/2面採光/オートロック/ダブルロックキー/ディンプルキー/防犯カメラ/セキュリティ会社加入済/全居室洋室/システムキッチン/ガスレンジ付/3口以上コンロ/グリル付/食器洗乾燥機/都市ガス/バストイレ別/オートバス/追焚機能浴室/浴室乾燥機/温水洗浄便座/洗面所独立/洗面化粧台/三面鏡付洗面化粧台/シャワー付洗面台/24時間換気システム/バルコニー/フローリング/全居室フローリング/室内洗濯置/クロゼット/シューズボックス/BS・CS/CATV/光ファイバー/TVインターホン/即入居可/保証人不要/エアコン/眺望良好/通風良好 |
|---|
| 備考 | 分譲賃貸マンションをお探しの方はリガールにお任せください! |
|---|
| 取引態様 | 媒介 |
|---|
| 情報登録日 | 2021年05月10日 |
|---|
| 情報更新日 | 2021年05月10日 |
|---|





