- HOME
- マンションギャラリー一覧
- 高橋ビル
高橋ビル
【 マンション 】2021年3月にリノベーションされた駅徒歩2分のマンション
| 最寄駅 | 所在地 | 間取り | 面積 | 築年月 |
|---|---|---|---|---|
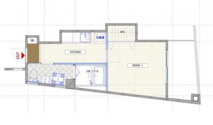
東武東上線・中板橋駅 徒歩 2分 | 東京都板橋区中板橋21-1 | 1 K | 24.49㎡ | 1991年03月 |
この物件の募集は終了しています
2021年3月にリノベーション済みの賃貸マンション。1階にコンビニがあり便利、中板橋駅徒歩2分で通勤や通学にも便利です。独立洗面台や温水洗浄便座、エアコン、モニター付インターフォン等の設備も充実。
物件写真・間取り
物件概要
| 物件名 | 高橋ビル |
|---|
| 交通機関 | 東武東上線・中板橋駅 徒歩 2分 三田線・板橋本町駅 徒歩 14分 東武東上線・ときわ台駅 徒歩 12分 |
|---|
| 建物構造 | 鉄骨造 |
|---|
| 所在階 / 階数 | 3階/4階建 |
|---|
| 主要採光面 | 東側 |
|---|
| 契約期間 | 2年 |
|---|
| 引渡 | 即入居 |
|---|
| 現況 | 空 |
|---|
| 設備・条件 | エレベーター/ガスレンジ付/グリル付/都市ガス/バストイレ別/温水洗浄便座/洗面所独立/24時間換気システム/バルコニー/フローリング/室内洗濯置/クロゼット/シューズボックス/TVインターホン/リノベーション/即入居可/保証人不要/エアコン |
|---|
| 備考 | リノベーションマンション情報が豊富なリガールで楽しいお部屋探しを |
|---|
| 取引態様 | 媒介 |
|---|
| 情報登録日 | 2021年04月22日 |
|---|
| 情報更新日 | 2021年04月22日 |
|---|





















