- HOME
- マンションギャラリー一覧
- サンメゾン目白高田
サンメゾン目白高田
【 マンション 】食洗器付3口システムキッチンや追い炊きオートバス等の充実設備
| 最寄駅 | 所在地 | 間取り | 面積 | 築年月 |
|---|---|---|---|---|
山手線・高田馬場駅 徒歩 9分 | 東京都豊島区高田3-40-10 | 2 LDK | 55.11㎡ | 2016年02月 |
この物件の募集は終了しています
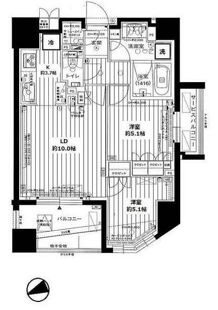
角部屋、二面バルコニーが広がる2LDKは食洗器やグリル付き3口システムキッチンや追い炊き、浴室乾燥機付きのお風呂、三面鏡付洗髪洗面化粧台、温水洗浄便座、シューズインクローゼット等の設備が充実してます。
物件写真・間取り
物件概要
| 物件名 | サンメゾン目白高田 |
|---|
| 交通機関 | 山手線・高田馬場駅 徒歩 9分 副都心線・雑司が谷駅 徒歩 6分 山手線・目白駅 徒歩 14分 |
|---|
| 間取り詳細 | LDK:13.7畳 洋室:5.1畳、5.1畳 |
|---|
| 建物構造 | RC |
|---|
| 所在階 / 階数 | 8階/10階建 |
|---|
| 主要採光面 | 西側 |
|---|
| 契約期間 | 2年 |
|---|
| 引渡 | 即入居 |
|---|
| 現況 | 空 |
|---|
| 設備・条件 | 分譲賃貸/エレベーター/24時間ゴミ出し可/宅配ボックス/敷地内ごみ置き場/シャッター車庫/駐輪場/バイク置場/角住戸/2面採光/オートロック/ダブルロックキー/防犯カメラ/LDK12畳以上/システムキッチン/ガスレンジ付/3口以上コンロ/グリル付/食器洗乾燥機/都市ガス/バストイレ別/オートバス/追焚機能浴室/浴室乾燥機/温水洗浄便座/洗面所独立/三面鏡付洗面化粧台/シャワー付洗面台/24時間換気システム/バルコニー/2面バルコニー/フローリング/全居室フローリング/室内洗濯置/クロゼット/シューズWIC/光ファイバー/TVインターホン/即入居可/保証人不要/エアコン/眺望良好/通風良好 |
|---|
| 備考 | 高級物件情報が豊富なリガール株式会社 |
|---|
| 取引態様 | 媒介 |
|---|
| 情報登録日 | 2021年04月16日 |
|---|
| 情報更新日 | 2021年04月16日 |
|---|




















